Masz pytania? Potrzebujesz pomocy? Zadzwoń +48 518 075 074

Menu

Markizoleta 120 – Pomiar – Jak mierzyć?

S=Szerokość markizorolety
H=Wysokość systemu
W=Wysięg ramienia markizolety


Szerokość S – jest to zewnętrzna skrajna szerokość kasety i prowadnic po obrysie. Opcjonalnie, w razie potrzeby możemy podać również szerokość między stopkami prowadnic (należy to wyraźnie zaznaczyć podczas zamówienia)
Wysokość H – jest to zewnętrzna skrajna wysokość całej markizolety – czyli prowadnic łącznie z kasetą (wymiary kaset i inne dane można znaleźć w zakładce dane techniczne)


Rzut boczny, kąt pochylenia


Markizoroleta 120 – Dane Techniczne

Markizoroleta 120 Selt – Komponenty

– klipy montażowe
– belka górna
– belka dolna
– ramię markizolety
– prowadnica listwowa


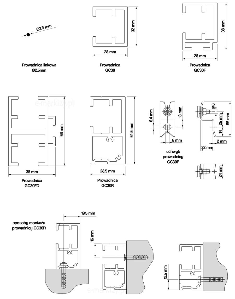
Przekroje

– Kaseta przekrój
– klip montażowy
– belka dolna
– prowadnica GC30
– prowadnica GC30F
– prowadnica GC30FD
– prowadnica GC30R
– rura nawojowa ocynkowana

Sposoby montażu prowadnicy GC30R


Przekroje

– belka dolna
– profil przeciwwietrzny
– rura nawojowa ocynkowana


Markizoleta 120 przekrój kasety

Markizoleta 120 podtynkowa przekrój kasety

Klip Montażowy


Markizoleta 120 – Kąt pochyłu regulowany

Max. wysięg ramienia: 63cm


Uchwyty Samonośne


Szczegół elementu łączenia kasety z prowadnicą

Szczegół blokady ramienia stałego

Szczegół prowadzenia ramienia stałego w prowadnicy



1. Kaseta i prowadnice na klipach mocujących

Prowadnice aluminiowe montujemy na uchwytach mocujących 22mm

Klip mocujący markizoletę


2. Kaseta samonośna, prowadnice na uchwytach samonośnych

Markizoleta 120 – wersja samonośna


3. Kaseta samonośna, prowadnice na klipach mocujących

Prowadnice aluminiowe montujemy na uchwytach mocujących 22mm

Markizoleta 120 – wersja samonośna z uchwytem 22mm


Markizoleta podtynkowa – montaż do sufitu


Markizoleta 120 – montaż podtynkowy


Markizoroleta 120 Selt

Zastosowanie:
System Markizoleta 120 łączy funkcje rolety oraz markizy. Przeznaczony do zewnętrznego zaciemnienia otworów okiennych, fasad i innych dużych przeszkleń
Charakterystyka wyrobu:
– Ograniczają dostęp światła słonecznego do pomieszczenia
– Zwiększają udział światła rozproszonego w pomieszczeniu
– Możliwość zabudowy kasety jako samonośnej lub podtynkowej
– Kaseta do montażu wnękowego, ściennego lub fasadowego z ekstrudowanego aluminium chroniąca tkaninę
– Kaseta do montażu podtynkowego wykonana z blachy aluminiowej wyposażona jest w wypust, umożliwiający wykonanie zewnętrznej wyprawy tynkarskiej
– Specjalne stalowe ramię tworzące kąt pochylenia 90° – 135°
– Rewizja od spodu kasety
– Możliwość zastosowania zasłony z tkanin o różnym współczynniku przezierności optycznej

– Chronią pomieszczenie przed nagrzewaniem przez co przyczyniają się do poprawy komfortu termicznego w pomieszczeniach
– Pozwalają na ograniczenie kosztów związanych z klimatyzacją pomieszczeń
– Ograniczają przenikanie hałasu do wnętrza budynku
– Nie wydzielają toksycznych substancji w trakcie eksploatacji
– Emisja hałasu przez wyrób z napędem elektromechanicznym (związany z ruchem roboczym elementów ruchomych, wytwarzany przez silnik elektryczny podczas pracy) nie jest uważana za znaczące zagrożenie i jest kwestią komfortu
– Silniki posiadają stopień ochrony obudowy IP 44
– Konstrukcja wyrobu i napędu pozwala na bezpieczne zatrzymanie zasłony na każdej wysokości w obszarze pracy góra-dół i pozostawanie tam w stanie zawieszenia
– Ruch w górę i dół odbywa się za pomocą napędu elektrycznego, może być sterowany za pomocą przełącznika manualnego lub zdalnie
– Struktura stosowanych tkanin HIGH-T-TEX skutecznie ogranicza powstawanie kontrastów tworzących się podczas wpadania promieni słonecznych do pomieszczenia
– Konstrukcja lakierowana proszkowo
– Kolorystyka: RAL, FSM

PARAMETRY TECHNICZNE REFLEKSOL MR103
Szerokość maksymalna: 3,5 m
Wysokość maksymalna: 4 m
Wysięg ramion: 63 cm
Średnica rury nawojowej: 78mm
Prowadnice: GC30; GC30F; GC30FD; GC30R
Belka dolna: φ42

Napęd elektryczny, silnik o parametrach:
– napięcie zasilania
230 V ~ 50 Hz – moc
od 120 W do 145 W ( w zależności od typu silnika )
– pobór prądu od 0,5 A do 0,64 A ( w zależności od typu silnika )
– stopień ochrony IP 44
– czas pracy ciągłej 4 min
– moment obrotowy 10 Nm
– prędkość obrotowa od 14 obr / min do 26 obr / min ( w zależności od typu silnika )
– temperatura pracy Od -10°C do + 40°C
Kolor konstrukcji RAL, FSM
Model tkaniny Wg aktualnego cennika
Zastosowanie Zewnętrzne
(do wnęki, na fasadzie budynku, montaż podtynkowy kasety)

DEKLAROWANE WŁAŚCIWOŚCI UŻYTKOWE
Deklaracja Właściwości Użytkowych 91 / MR / 2017
Odporność na obciążenie wiatrem 1 klasa (48Pa)
Całkowity współczynnik przenikania energii słonecznej gtot 0,01 – 0,90*


Markizoleta 120 - Dane Techniczne - Markizoroleta 120 Komponenty, kaseta podtynkowa, klipy montażowe, belka górna, belka dolna, ramię markizolety, prowadnica listwowa, Markizoleta 120 Przekroje, belka dolna, profil przeciwwietrzny, rura nawojowa ocynkowana, Markizoroleta 120 Prowadnice przekroje, sposoby montażu prowadnicy, Markizoroleta 120 Prowadnice przekroje kasety, markizoleta wersja podtynkowa, Markizoleta 120 mocowanie prowadnic, zamocowanie prowadnic markizolety selt, Markizoleta 120 rozstaw klipów montażowy markizolety, mocowanie kasety, Markizoleta 120 mocowanie do sufitu, rozstaw kołków, Markizoleta 120 szczegóły mechanizmu, prowadzenie ramienia stałego w prowadnicy, Markizoroleta 120 wersja samonośna, rolety samonośne, Markizoroleta 120 wersja samonośna, rolety samonośne, uhwyt 22mm, Markizoroleta 120 klip mocujący, markizoleta montaż, Markizoroleta 120 podtynkowa montaż sufitowy, markizoleta montaż do sufitu, montaż podtynkowy, Markizoroleta 120 montaż podtynkowy, markizoleta 120 selt montaż podtynkowy