Masz pytania? Potrzebujesz pomocy? Zadzwoń +48 518 075 074

Menu

Markizoroleta 120 – Sposoby montażu


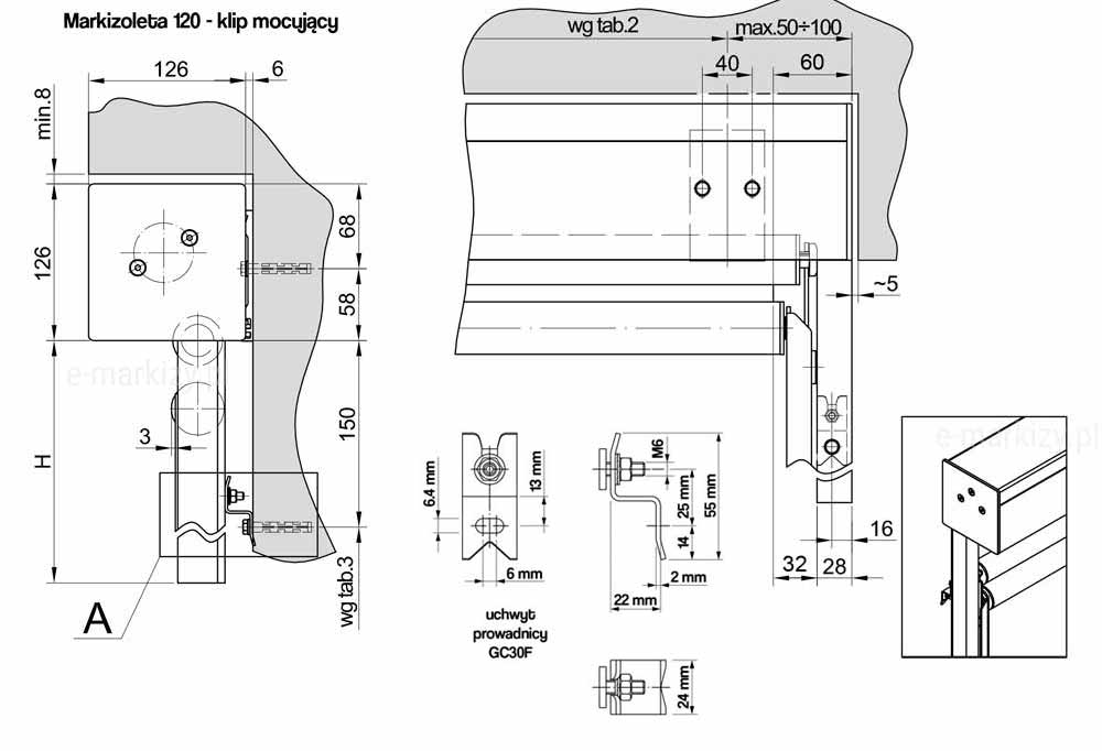
1. Kaseta i prowadnice na klipach mocujących

Prowadnice aluminiowe montujemy na uchwytach mocujących 22mm


2. Kaseta samonośna, prowadnice na uchwytach samonośnych


3. Kaseta samonośna, prowadnice na klipach mocujących

Prowadnice aluminiowe montujemy na uchwytach mocujących 22mm


– kaseta z ekstrudowanego aluminium do montażu wnękowego, ściennego lub fasadowego
– kaseta z blachy aluminiowej do montażu podtynkowego (wyposażona w wypust umożliwiający wykonanie zewnętrznej wyprawy tynkarskiej)
RENDERY

MR120 prowadnice gc30f na uchwytach, Markizoleta 120 sposoby montażu

Markizoleta 120 Selt

| Kaseta samonośna
| Prowadnice GC30 bez uchwytów
| Montaż do wnęki

MR120 prowadnice gc30 bez uchwytów, Markizoleta 120 sposoby montażu

Markizoleta 120 Selt

| Kaseta samonośna
| Prowadnice GC30F na uchwytach
| Montaż do wnęki, ściany lub do ramy okna

MR120 prowadnice gc30r bez uchwytów, Markizoleta 120 sposoby montażu

Markizoleta 120 Selt

| Kaseta samonośna
| Prowadnice GC30R bez uchwytów
| Montaż do wnęki, ściany lub do ramy okna


Markizoroleta 120 - Sposoby montażu - markizoleta montaż, markizoroleta montaż, markizorolety intrukcja montażu, jak montować refleksole markizowe, markiza roletowa montaż, markizy roletowe selt