Masz pytania? Potrzebujesz pomocy? Zadzwoń +48 518 075 074

Menu

Montaż Pergoli Lamelowej Technic

Przed montażem:
– Sprawdzić zgodność dokumentacji ze stanem elementów
– Sprawdzić długość profili na podstawie dokumentacji
– Porównać wymiary dokumentacji z zastanym miejscem montażu
– Przygotować miejsce montażu

Poniżej przedstawiamy przykładowy montaż Pergoli Technic (Climatic)

S=Szerokość całkowita pergoli
W=Wysięg konstrukcji1. Wyznaczyć szerokość całkowitą konstrukcji i wysięg na podłożu.
2. Wyznaczyć punkty zaczepu kostek nóg w podłożu (tts.007.03 i tts.007.02).
3. Sprawdzić przekątne po wyznaczeniu punktów zaczepu kostek nóg w podłożu.


4. Ustawić kostki tns.007.03 i tns.007.02 .
5. Odrysować miejsca zakotwiczenia w podłożu.
6. Odsunąć kostki – wywiercić otwory.
7. Zakotwiczyć kostki tns.007.03 i tns.007.02 używając kotwy chemicznej i szpilek m10x20.


8. Zakotwiczyć profile tta.103 z profilami tta101 za pomoca dwóch śrub, od wewnętrznej strony konstrukcji, ampuł m6x40.


9. Powstałą bramkę należy zakotwiczyć na kostkach nóg tta.007.03 i tta.007.02, używając śrub Ampuł m6x10.


10. Zamontować prowadnice tta.101 do profili tta.103 oraz blachy wypelniajace tts.002.
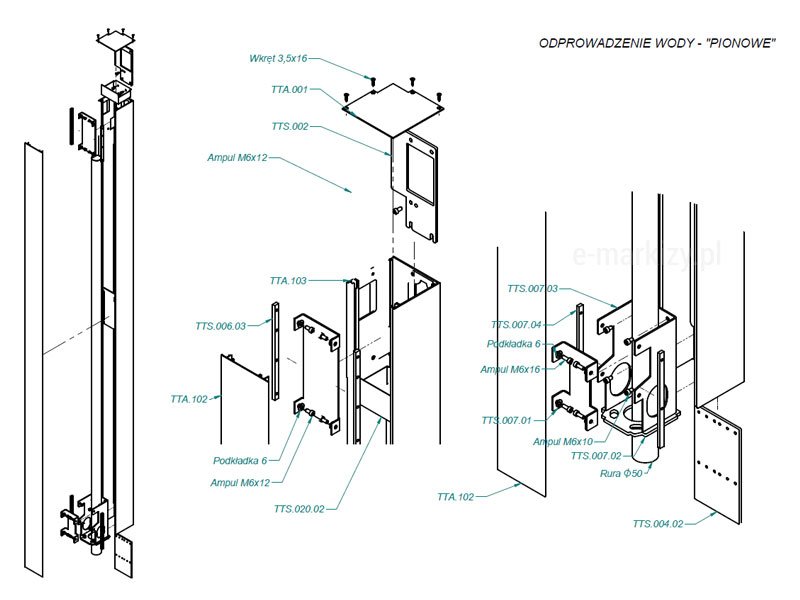
Uwaga! W przypadku odprowadzenia wody w nodze, przed zamontowaniem prowadnic tta.101 do profili tta.103, należy zamontować wypełnienie tts.020.02 w profilu tta.103


11. Zakotwiczyć zaślepki rynny odpowiednio tta.003.04 za pomocą silikonu do profilu tta.103.
Zaślepkę rynny TTA.003.04 należy włożyć od wewnętrznej strony rynny do profilu TTA.104, po czym należy ją dosunać do profilu TTA.101.
Miejsce połączenia rynny TTA.104 z profilem podporowym TTA.103 i zaślepką rynny odpowiednio TTA.003.04 należy zasilikonować.


Możliwe konfiguracje:

Pergola Technic Przyścienna
Obejmuje:
Montaż prowadnicy bezpośrednio do elewacji, za pomocą uchwytów ściennych.
Zakotwiczenie profili nożnych na standardowych kostkach nóg w podłożu, zastosowaniem wylewek wody lub bezpośrednim odprowadzeniem wody do gruntu.
Rynny odprowadzające wodę bezspośrednio do profili długich profili nożnych.

1. W celu zamontowania prowadnic tta.101 do elewacji należy użyć uchwytów ściennych
Tts.010 – (tts.010.01 i tts.010.02).
2. Montaż pozostałych profili przeprowadzić zgodnie z dalszą częścią instrukcji.


Możliwe konfiguracje:

Pergola Technic Modułowa
Obejmuje:
Montaż standardowy profili.
Zakotwiczenie profili nożnych na standardowych kostkach nóg w podłożu, zastosowaniem wylewek wody lub bezpośrednim odprowadzeniem wody do gruntu.
Montaż prowadnic do profili nożnych za pomocą śrub od wewnętrznej strony konstrukcji.
Prowadnica środkowa jest otoczona rynnami z dwóch stron.

1. Środkową prowadnicę zamontować do nogi środkowej za pomocą śrub ampul m6x40.
2. W celu montażu pozostałych profili, należy postępować zgodnie z dalszą częścią
Instrukcji.


Zaślepkę rynny TTA.003.04 należy włożyć od wewnętrznej strony rynny do profilu TTA.104, po czym należy ją dosunać do profilu TTA.101.
Miejsce połączenia rynny TTA.104 z profilem podporowym TTA.103 i zaślepkę rynny odpowiednio TNA.003.04 należy zasilikonować


Możliwe konfiguracje:

Pergola Technic Przyścienna Prostopadłe lamele
Obejmuje:
Montaż jednej z prowadnic do elewacji za pomocą specjalnych uchwytów ściennych.
Zakotwiczenie profili nożnych na standardowych kostkach nóg w podłożu, zastosowaniem wylewek wody lub bezpośrednim odprowadzeniem wody do gruntu.
Profile zadaszeniowe ułożone prostopadle w stosunku do elewacji.
Możliwość zastosowania innowacyjnego połączenia profili za pomocą nogi krótkiej.
Profil rynny poprowadzony wokół konstrukcji, w celu odprowadzenia wody przez dłuższe profile nożne.

1. Na kostkach nóg tts.007 należy zakotwiczyć powstała bramkę po złożeniu profili tta.103 i
Tta.101, za pomocą dwóch śrub m6x40 od wewnętrznej strony konstrukcji.
2. Za pomocą uchwytów tts.019 należy zamocować profil tta.101 do elewacji.
3. Uchwyt tts.019 należy zamontować za pomocą prętów gwintowanych m12x2 do elewacji.







15. Zamontować lamele tta.106 do prowadnicy tta.101 na trzpień ttt.206.
15.1. Lamele do montażu obrócić o kąt mniejszy niż 90° w stosunku do pełnego otwarcia lameli (Rys. 1).
15.2. Montaż profilu należy rozpocząć od strony przeciwległej, w celu umiejscowienia w otworze prowadnicy TTA.101, pod kątem. Po częściowym zamocowaniu w odpowiednim otworze, należy dosunąć profil w celu zablokowania, oraz obrócić profil do pozycji zamkniętej (Rys. 2).
15.3. Po zamocowaniu profilu w prowadnicy przeciwległej, należy powtórzyć czynność montażu profilu w prowadnicy silnikowej (Rys. 3).
15.4. W przypadku lameli z punktami led należy, spiąć kabel za pomocą złączki, po czym całość wrzucić w profil prowadnicy (Rys. 2 – widok 2).


16. Zamontować profil spinający lamele tta.107, za pomocą trzpieni lameli.


17. Zamontować zaślepki nogi tta.102 i tta.001.02.
18. Zamontować zaślepkę tta.102 dla profilu tta.103.


Finalne złożenie profila TTA.105 z TTA.104
19. Montaż opcji dodatkowych:
19.1 montaż profila led tta.105 na tta.104