Masz pytania? Potrzebujesz pomocy? Zadzwoń +48 518 075 074

Menu

Montaż Zadaszenia Modes Glas

Montaż zadaszenia Modes Glas jest procesem nie wymagającym specjalistycznej wiedzy i umiejętności. Z naszą prostą instrukcją wykonasz montaż w kilku prostych krokach. Zapraszamy do zapoznania się z krótkim opisem, przebiegu montażu.

Przegląd etapów montażu na przykładzie zadaszenia z poliwęglanem w postaci obszernej galerii zdjęć znajdziesz w zakładce z danymi technicznymi. 

Etapy montażu zadaszenia

Pierwszymi czynnościami jakie musisz wykonać, aby zamocować zadaszenie na tarasie są:

A. Zespalanie krokwi z belką frontową

B. Montaż narożnika zadaszenia

C. Łączenie podpór ze stopami

D. Montaż do ściany


Mocowanie płyt dachu do belek stalowych

Płyta poliwęglanowa lub szklana montowana jest za pomocą wewnętrznych blokad oraz uszczelek gumowych. Podczas montażu płyt dachowych ze szkła bezpiecznego zachowaj szczególną ostrożność.


3. Montaż zadaszenia do ściany

Profil dachowy mocowany jest do ściany, a moduły paneli dachowych łączone są ze sobą

4. Łączenie dachu z podporą

Dach zadaszenia łączony jest z rynną odpływową oraz podporą/słupem

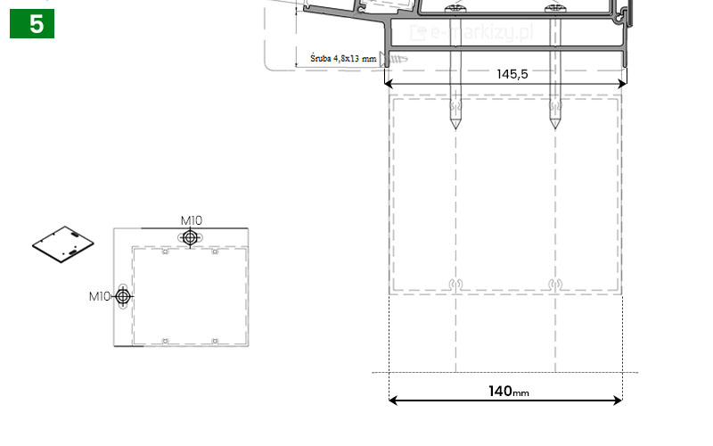
5. Łączenie podpory ze stopą

Otwory w stopie zadaszenia posiadają średnicę ⌀10mm