Masz pytania? Potrzebujesz pomocy? Zadzwoń +48 518 075 074

Menu

Pergola Dragon – Dane Techniczne

Komponenty pergoli

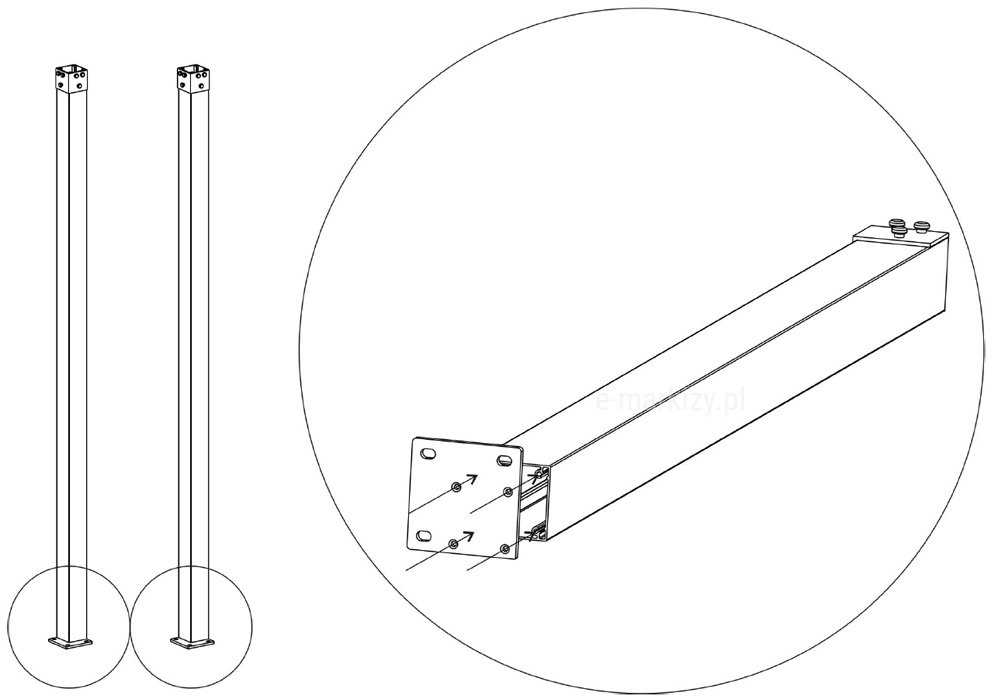
A – Słup
B – Poprzeczka
C – Lina
D – Tkanina
E – Profil tkaniny
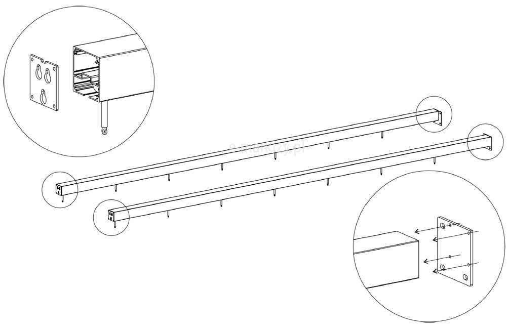
F – Prowadnica


Nachylenie poprzeczek pergoli

Pergola Dragon zapewnia częściową odporność na deszcz w obu opcjach montażu poprzeczek. Możliwość powstawania zastoju wody deszczowej.
Poprzeczki pod kątem
Standardowo poprzeczki są nieco pochylone, by umożliwić spływanie nadmiarowi wody.
Poprzeczki w poziome
Poprzeczki mogą być zamontowane w poziomie dla zwiększenia walorów estetycznych. Woda nie będzie spływać


Tkanina pergoli

Standardowo tkanina pomiędzy poprzeczkami ma 51cm. Przy pełnych wymiarach cennikowych, tkanina opada ok 1-5cm. Przy pewnych wymiarach ilość pól powoduje, że tkanina opada 15-20cm.
Tkanina opadająca 1-5cm
(uszyta na wymiar)
Tkanina opadająca 20-25cm
(dodatkowa poprzeczka i pole tkaniny)


Kąt ułożenia poprzeczek | Sposób odpływu wody Długość zawiesia
Poprzeczki w poziomie
woda deszczowa spływa z obu stron losowo
Krótkie / Krótkie
Poprzeczki pod kątem
woda deszczowa spływa z niższej strony
Krótkie / Średnie
Poprzeczki pod większym kątem
woda deszczowa spływa z niższej strony
Krótkie / Długie
Poprz. pod kątem w pergoli z 3 prowadnicami
woda deszczowa spływa z niższej strony
Krótkie / Średnie / Długie

Podczas instalacji należy zdecydować który bok będzie niższy. Woda deszczowa będzie spływać z niższego boku.


Daszek ochronny nad tkaniną

Specjalne arkusze blachy chronią zwiniętą tkaninę przed deszczem


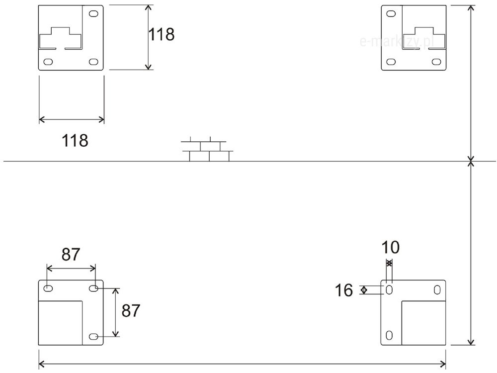
Podstawa do mocowania podpory-słupka ma wymiary 118x118mm, a wymiary podpory-słupka to 80x80mm


Odpływ wody deszczowej

Woda deszczowa odprowadzana jest na prawą, lewą lub na obie strony pergoli – zależnie od zamówionej konstrukcji


Daszek systemowy

Opcjonalny ochronny daszek pergoli chroni pakiet zwiniętej tkaniny przed opadami deszczu


Konstrukcja pergoli zabezpieczona przed czynnikami zewnętrznymi


Przykładowa instrukcja montażu pergoli

– Używając blach montażowych słupów jako szablonu wyznaczyć punkty nawiertów w podłożu.
– Używając blach montażowych prowadnic jako szablonu wyznaczyć punkty nawiertów w podłożu
zakładając, że prowadnice muszą być zamontowane w poziomie. 90 stopni w stosunku do słów oraz 90 stopni w stosunku do ściany.


– Przykręcić blachy montażowe do słupów przy pomocy wkrętów nierdzewnych 5,5×50.
– Do wkręcania użyć smaru (np wazelina).


– Zamontować słupy do stałego podłoża.
– Odpowiedzialność za dobór środków montażowych leży po stronie zespołu monterskiego.


– Umieścić wózki w prowadnicach.
– w obu prowadnicach powinna znaleźć się ta sama ilość wózków.
– Zależnie od zamówienia wózki mogą być różnych długości. W każdej prowadnicy powinny znaleźć się wózki o jednolitej długości.


– Przykręcić blachy końcowe do prowadnic przy pomocy wkrętów samowiercących 5,5×50.
– Przykręcić blachy montażowe do prowadnic przy pomocy wkrętów samowiercących 5,5×50.
– Do wkręcania użyć smaru (np wazelina).


– Przykręcić blachy końcowe do poprzeczki przy pomocy wkrętów samowiercących 5,5×50.
– Do wkręcania użyć smaru (np wazelina).


– Pewnie zahaczyć blachy końcowe poprzeczki do słupów (w razie potrzeby użyć gumowego młota)
– Dokręcić nakrętki wewnątrz słupów przy pomocy klucza nasadowego 13mm typu grzechotka.
– Pewnie zahaczyć blachy końcowe prowadnicy do słupa (w razie potrzeby użyć gumowego młota)
– Zamontować prowadnicę do ściany
– Odpowiedzialność za dobór środków montażowych leży po stronie zespołu monterskiego.
– Dokręcić nakrętki wewnątrz słupów przy pomocy klucza nasadowego 13mm typu grzechotka.
– Pewnie zahaczyć blachy końcowe kolejnej prowadnicy do słupa (w razie potrzeby użyć gumowego młota)
– Zamontować prowadnicę do ściany
– Odpowiedzialność za dobór środków montażowych leży po stronie zespołu monterskiego.
– Dokręcić nakrętki wewnątrz słupów przy pomocy klucza nasadowego 13mm typu grzechotka.
– Nakrętki wewnątrz słupów dokręcać z wyczuciem, tak aby nie przekręcić śrub klinujących.
– Sprawdzić przy pomocy poziomicy czy prowadnice i poprzeczka frontowa są w poziomie.


– Upewnić się, że wszystkie nakrętki wewnątrz słupów są skręcone i poprzeczki oraz prowadnice są pewnie zamontowane.
– Zamontować zaślepki słupów przy pomocy wkrętów samowiercących 5,5×30.
– Do wkręcania użyć smaru (np wazelina).


– Wybrać słup na którym będzie znajdować się knaga (słup A lub B).
– W dalszej części instrukcji podążać zgodnie z wybranym słupem.
– Zestaw bloków poziomych dostarczony w całości należy rozkręcić.
– Górną blachę Przykręcić przy pomocy wkrętów samowiercacych 5,5×30 na środku poprzeczki tak by znak „L” wskazywał wejście i wyjście linek.
– Przykręcić dolną blachę wraz z kółkami oraz jedną tuleją tak by śruba przechodziła przez tuleję.
– Wsunąć od boku pozostałe tuleje i wkręcić śruby tak by śruby przechodziły przez tuleje.


– Przykręcić zestaw bloczków przy pomocy wkrętów samowiercących 5,5×30 tak by przylegał jednocześnie do słupa oraz poprzeczki
– Przykręcić knagę do słupa w okolicy połowy wysokości słupa przy pomocy wkrętów samowiercących 5,5×50.


– Przykręcić bloczek do ściany w świetle prowadnic dokładnie na środku pomiędzy prowadnicami.


– Zamontować odbojniki gumowe.
– Wsunąć 2 uchwyty linki w gniazdo profila.
– Zablokować uchwyty linki na środku profila wkręcając śrubę imbusową M6x16 z końcem stożkowym aż oprze się o wewnętrzną ścianę profila.
– Wsunąć nakrętki prostokątne do profila i skręcić z elementem zawiesia wózka (śruba M6x30) tak by licowało się z brzegiem profila.


– Ilość poprzeczek zależy od rozmiaru zamówionego produktu
– Wsunąć uchwyt linki w gniazdo profila.
– Zablokować uchwyty linki na środku profila wkręcając i śrubę imbusową M6x16 z końcem stożkowym aż oprze się o wewnętrzną ścianę profila.
– Wsunąć nakrętki prostokątne do profila i skręcić z elementem zawiesia wózka (śruba M6x30) tak by licowało się z brzegiem profila.


– Zamontować poprzeczki do wózków wsuwając a potem dokręcając śrubę M6x30.
– Zawiesić poprzeczkę czołową na pierwszej parze wózków po frontowej stronie pergoli.
– Odbojniki powinny być zwrócone w stronę słupów frontowych pergoli.
– Zawiesić pozostałe poprzeczki tkaniny. (jedna poprzeczka zostanie bez wózków)


– Przesunąć jedną z zawieszonych poprzeczek tkaniny do ściany i zaznaczyć jej pozycję.
– Odsunąć zawieszoną poprzeczkę od ściany.
– Przykręcić ostatnią poprzeczkę do ściany w wyznaczonym miejscu.
– Jeśli zamówiono pergolę z przechyloną tkaniną, jedna z prowadnic ma krótkie wózki co może powodować kolizję z uchwytem ściennym. W takim przypadku nieruchomą poprzeczkę należy montować do ściany poniżej uchwytów ściennych.


– Zaczynając od poprzeczki najbliżej ściany przewlec linkę przez wszystkie uchwyty w poprzeczkach tkaniny.
– Ustawić poprzeczki tkaniny w równych odległościach
– Ustalić ich pozycje na lince wkręcając od góry w uchwyty linki śrubę imbusową M6x8 z końcem płaskim.


– Przewlec linę przez zewnętrzne koło poziomego zestawu bloczków.

– Przewlec linę przez zewnętrzne kołow zestawu bloczków, pozostawiając sporo swobodnej liny.
– Wprowadzić linę w koło po wewnętrznej stronie.

– Przewlec linę przez wewnętrzne koło poziomego zestawu bloczków.

– Przewlec linę przez koło tak by wchodziła górą a wychodziła dołem.

– Zablokować linę w drugim uchwycie poprzeczki czołowej tkaniny.
– Sprawdzić czy pergola otwiera się i zamyka do końca i jest wystarczająco dużo liny do zaknagowania
– Zawiązać solidny supeł na początku i końcu liny zaraz przy uchwytach liny oraz odciąć nadmiar liny.


– Ostrożnie i powoli wsunąć tkaninę w okrągłe kanały w parach poprzeczek tkaniny.
– Nie ciągnąć gwałtownie ani szybko.
– Podpierać swobodną tkaniną tak by wsuwała się w kanał prosto i bez zagięcia.
– Przy zbyt gwałtownej operacji może dojść do rozdarcia tkaniny o rant profila.


– Wsunąć plastikowe kołki w kanały w tkaninie.
– Wkęcić wkręty 4,8×38 w kołki znajdujące się wewnątrz tkaniny.
– Przykręcić zaślepki poprzeczek tkaniny wkrętami 3×13.


– Zamocować belki daszka do konstrukcji

– Zamocować blok belki do belek daszka

– Przykręcić od góry arkusze blachy daszka do belek daszka pergoli


Instrukcja ogólna

– Dopilnuj, aby produkt był montowany przez wykwalifikowany personel.
– Nie modyfikuj w żaden sposób konstrukcji markizy.
– Nie stój pod zamontowaną markizą dopóki trwają prace konserwacyjne lub montaż.
– Stosuj się do norm i regulacji prawnych dotyczących bezpieczeństwa w pracy, kiedy przystępujesz do prac montażowych i konserwacyjnych.
– Zabezpiecz/zawiąż line po uzyciu napędu manualnego.
– Nie używaj otwartego ognia w pobliżu markizy.
– Używaj dodatkowej regulacji ręcznej w markizach zasilanych elektrycznie tylko w nagłych wypadkach.
– Nie obciążaj konstrukcji markizy.
– Zwiń markizę w obliczu zapowiadanych złych warunków pogodowych takich jak: deszcz, wiatr, śnieg lub grad.

Właściwe użytkowanie

Markiza została zaprojektowana by chronić przed światłem słonecznym. Jest ona dostarczona z systemem otwierająco/zamykającym, który umożliwia użytkownikowi rozwijanie i zwijanie jej w miarę potrzeb.
– W przypadku sterowania ręcznego, system złożony jest z bloczków, knagi oraz liny.
– Poprzez pociąganie liny w obie strony markiza jest rozwijana lub zwijana.
– W przypadku markiz ze sterowaniem ręcznym, rozwijając markizę należy jedynie tak do momentu jak lina zostanie naprężona.
– W przypadku napędu elektrycznego, system złożony jest z silnika elektrycznego oraz przełącznika sterującego (może być to przełącznik naścienny, pilot radiowy i/lub automatyka pogodowa).
Markiza nie została zaprojektowana dla innych przeznaczeń (takich jak ochrona przed innymi czynnikami atmosferycznymi).

Informacje o zasilaniu elektrycznym

Jeśli markiza wyposażona jest w silnik elektryczny lub oświetlenie do instrukcji dołączone są:
– Schemat układu elektrycznego do użycia podczas montażu, wraz z instrukcją.
– Certyfikacja podzespołów elektrycznych dostarczonych z markizą.
– Zawsze odłączaj zasilanie z zasilanych elektrycznie markiz przed przystąpieniem do konserwacji.
– Przełączniki powinny być umieszczone w miejscu z którego widać markizę w każdym położeniu ruchu.
– Przełączniki powinny być umieszczone z dala od ruchomych części.
– Przełączniki powinny być umieszczone na wysokościach zgodnych z przepisami dotyczącymi osób niepełnosprawnych (zazwyczaj mniej niż 1,30 m).
– W przypadku, kiedy ręczne sterowanie jest również możliwe powinno znajdować się ono na wysokości poniżej 1,80 m.
– Przechowuj przełączniki zasilania elektrycznego z dala od dzieci.
– Jeżeli przełączniki umieszczone są na zewnątrz to powinny mieć stopień ochronny minimalnie IP55.
W przypadku montażu w terenie o dużym nasileniu wiatru, narażonym na częste awarie zasilania, zalecamy zastosowanie urządzenia do ręcznej regulacji lub zastępczego źródła zasilania. W przypadku zasłon zewnętrznych, które mogą być uruchomione z miejsca poza zasięgiem widzenia wyrobu, użytkownik powinien podjąć odpowiednie środki organizacyjne zapobiegające uruchomieniu zasłony podczas prowadzonych w pobliżu czynności remontowo-konserwacyjnych, takich jak np: czyszczenie okien lub ścian.

Zastosowanie liny do zwijania i rozwijania markizy

– Odwiązać linę z knagi.
– Ciągnąc linę po wewnętrznej stronie markizy rozwijając tkaninę do momentu oporu.
– Ciągnąc linę po zewnętrznej stronie markizy zwijając tkaninę do momentu oporu.
– Po zakończonej operacji zabezpieczyć napiętą linę, okręcając line kilkukrotnie wokół knagi.

Skontrolować markizę po montażu

Kiedy montaż jest zakończony dokonaj kontroli pracy markizy oceniając:
– Działanie (ręczne lub elektryczne).
– Stabilność.
– Ograniczenia zatrzymania.

Uruchomienie

W czasie uruchamiania w zasięgu markizy nie powinny znajdować się żadne osoby. Należy usunąć wszelkie przedmioty znajdujące się pod markizą i na drodze jej ruchu. Z pilota zdalnego sterowania można korzystać tylko w momencie gdy użytkownik widzi markizę w całym zakresie jej ruchu. Wszelkie urządzenia sterujące powinny być przechowywane poza zasięgiem dzieci.


Pergola Dragon - Dane Techniczne - Pergola dragon tkanina, pergola tkanina płasko, pergola tkanina opadająca, wysięg pergoli, Pergola dragon nachylenie poprzeczki, pergola pochyła, szerokość pergoli tarasowejPergola dragon nachylenie poprzeczki, pergola pochyła, szerokość pergoli tarasowej, Pergola dragon nierdzewne zawieszenie, pergola dane techniczne, pergola zwijana, zwijane zadaszenie tarasu, Pergola dragon łączenia ramy, ogródek zimowy aluminium, ogród zimowy na wymiar, ogród zimowy zwijany, Pergola tarasowa dragon komponenty, pergole komponenty, budowa pergoli tarasowej, Słup, Poprzeczka, Lina, Tkanina, Profil tkaniny, Prowadnica pergoli, , Pergola dragon montaż, instrukcja montażu pergoli dragon, Pergola tarasowa dragon montaż, Pergola tarasowa instrukcja montażu, Pergola tarasowa dragon wymiary słupka-podpory