Masz pytania? Potrzebujesz pomocy? Zadzwoń +48 518 075 074

Menu

Pergola Elegancy – Przyścienna – Pomiar i Dane techniczne

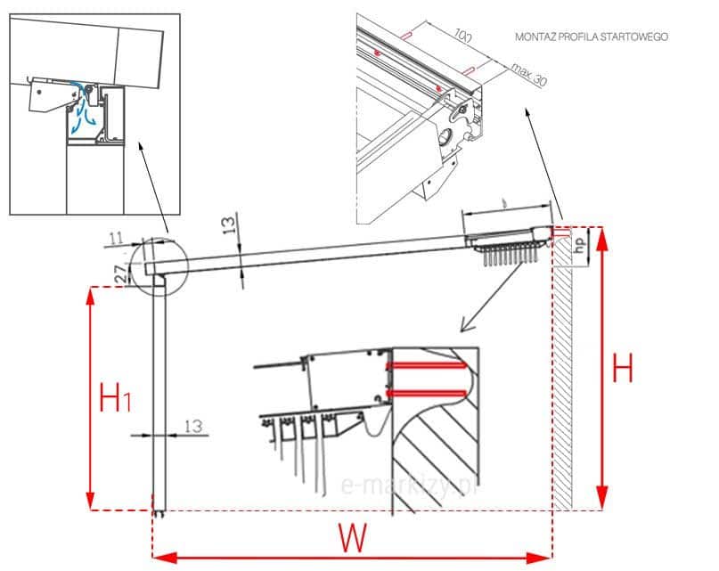
Pergola Elegancy – Przyścienna – jak mierzyć

S=Szerokość pergoli, W=Wysięg pergoli


Widok z boku

W=Wysięg pergoli
H=Wysokość całkowita (zależna jest od wysięgu oraz stopnia nachylenia pergoli – wymiar ustalany przez producenta
H1=Wysokość 230cm (standard, istnieje możliwość zamówienia krótszych lub dłuższych podpór)

Montaż profila startowego


Widok z boku

W=Wysięg pergoli
H1=Wysokość profila podporowego (standard 230cm, max. 260cm)
H=Wysokość pergoli
– Belka spinająca (opcja dodatkowo płatna)


Widok od przodu

S=Szerokość pergoli
H=Wysokość pergoli


Widok od przodu – moduły

S=Szerokość całkowita konstrukcji modułowej
S1, S2, S3=Szerokość poszczególnych modułów


Pergola Elegancy – Przyścienna – Dane techniczne

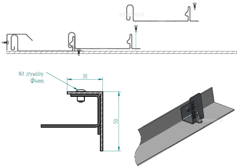
Rozstaw stóp pergoli

Przekroje profili:

– Profil prowadnicy
– Profil podporowy


Pakiet materiału

Wysokość pakietu hp zależy od rozstawu pomiędzy belkami przeciwwietrznymi. Na życzenie można zmniejszyć odległość między belkami, jednocześnie zmniejszając wysokość pakietu


Spadek dachu

Sposób liczenia spadku dachu oraz zależności rozstawu prowadnic


Mocowanie podpór

Podpory pergoli standardowo mocowane są bezpośrednio do podłoża. Za dopłatą, możliwe są podkładki montażowe dopasowane do rodzaju odprowadzania wody z konstrukcji. Podkładki montażowe są wykonane ze stali nierdzewnej nielakierowanej.


Odprowadzenie wody

– Frontowe
– Dolne


Pergola modułowa – Wymiary

*Prowadnica zawsze w osi nogi

Pergola Elegancy Przyścienna występuje w pojedynczym module do 500cm szerokości. Pergole możemy łączyć ze sobą w różnych konfiguracjach (również niesymetrycznie np. pergola o szerokości 400cm połączona z pergolą o szerokości 270cm).


Pergola Elegancy – Widok ogólny


Pergola Elegancy – Widok z boku, rzut boczny


Pergola Elegancy – Widok z góry, rzut górny


Pergola Komponenty
Lista elementów pergoli:

1. PROWADNICE
2. PROFIL PODPOROWY PRZEDNI
3. RYNNY
4. PROFIL SPINAJĄCY
5. PROFIL BOCZNY 80×130
6. PROFIL BOCZNY 80×80

Pergola Komponenty
Lista elementów pergoli:

7. PROFIL STARTOWY
8. MASKOWNICA GÓRNA
9. PROFIL NAPĘDU
10. OBRÓBKA BLACHARSKA
11. DASZEK SYSTEMOWY


Tkanina pergoli – elementy konstrukcji

Belki pergoli:
belka frontowa,
belka środkowa,
belka tylna
Wózki tkaniny:
wózek frontowy,
wózek środkowy,
wózek końcowy


Przykładowy Montaż Pergoli Przyściennej


Profil startowy przykręcamy do ściany w kilku miejscach, w zależności od szerokości pergoli.
Przewiercamy go w dowolnych miejscach zgodnie z potrzebami, z zachowaniem odpowiednich odległości.
Należy pamiętać, że minimalna odległość kotwiczenia profila po obu stronach to około 250mm.


Element należy wsunąć do profila, nastepnie skręcić śrubą M6x14 z kostką znajdującą się w porcie nogi.



Zawieś prowadnicę na uchwycie w profilu startowym, a następnie skręć za pomocą śruby M8x70.
W uchwycie należy umieścić śruby M8x25 z podkładkami oraz zakręcić lekko nakrętką 8.


Wsunąć profil spinający (kierunek ruchu obrazują czerwone strzałki) i przykręcić śrubą M6 od wewnętrznej strony.


Zakotwienie: Nasuń stopy na elementy mocujące, podnosząc je do góry aby ominąć śruby, a następnie skręć śrubami M6, do kostek umieszczonych w portach nogi.
Zamontuj dolną wylewkę wody w profilu. Zainstaluj zaślepkę nogi.
Dokręć śrubę M8X60 znajduj ącą się w uchwycie przy zaślepce rynny.


Wsunąć profil spinający (kierunek ruchu obrazują czerwone strzałki) i przykręcić śrubą M6 od wewnętrznej strony.



Moduł tkaniny pergoli jest fabrycznie złożony i gotowy do instalacji na konstrukcję pergoli. Moduł tkaniny składa się z belek przeciw wietrznych. Do każdej z belek, doczepione są pasy tkaniny. Cały model należy wpiąć w wózki prowadzące (które są zainstalowane fabrycznie w prowadnice pergoli).
*Aby ułatwić czynność instalacji modułu tkaniny, najlepiej użyć rusztowania lub drabin, aby podtrzymać tkaninę możliwie blisko wózków prowadzących.

Zainstaluj profil worek oraz jego zaklik do profila startowego. Uruchom motor a następnie zjedź pierwszym wózkiem w prowadnicy ustawiając go blisko rynny.

Umieść pakiet tkaniny na rusztowaniu w bliskiej odległości od prowadnic

Montaż należy zacząć od zamocowania przedniej belki. Następnie zainstaluj w ten sam sposób wszystkie małe belki.

Po instalacji pakietu tkaniny, bez tylnej belki przesuń stronę tylnej części za pomoc ą Motorbox’a.

Zainstaluj belkę tylną.


Zainstaluj profil worek oraz jego zaklik do profila startowego.
Uruchom motor a następnie zjedź pierwszym wózkiem w prowadnicy ustawiając go blisko rynny.

Umieść pakiet tkaniny na rusztowaniu w bliskiej odległości od prowadnic

Montaż należy zacząć od zamocowania przedniej belki. Następnie zainstaluj w ten sam sposób wszystkie małe belki.

Po instalacji pakietu tkaniny, bez tylnej belki przesuń stronę tylnej części za pomoc ą Motorbox’a.

Zainstaluj belkę tylną.


Montaż profilu bocznego 80×130
Montaż profilu bocznego 80×80


Pergola balkonowa Elegancy , pergola z donicą, pergola na balkonie w bloku, pergola z oświetleniem, oświetlona pergola, przeszklenia w pergoli, pergola przeszklona, Pergola śląsk, pergola poznań, pergola obi, pergola castorama, Pergola rozsuwana, pergola montowana do ściany, Pergola Elegancy mocowana do ściany, wiata tarasowa, osłona tarasu aluminiowa, pergole tarasowe wycena, pergole tarasowe lublin, Pergola tarasowa tarasola, pergola z tkaniną, pergola z osłoną boczną, zadaszenie tarasu rozsuwane, pergola rozsuwana, pergola na ogródek piwny, Pergola tarasowa Elegancy, pergola restauracyjna, pergola do restauracji, Pergola tarasowa Elegancy, pergola premium, pergole na wymiar, pergole aluminiowe wycena, zadaszenie tarasu rozsuwane, pergola tarasowa z ruchomą osłoną, konstrukcja aluminiowa na wymiar, konstrukcja aluminiowa ogrodu zimowego, zadaszenie tarasu z płótna, pergole na raty, pergola tarasowa raty, aluminiowa konstrucja tkaninowy dach, Pergola naścienna, pergola na ogródek piwny, Pergola Elegancy przyścienna dane techniczne, przekroje profili pergoli, widok z przodu pergoli, rozstaw stóp pergoli, Pergola Elegancy przyścienna dane techniczne, widok z boku pergoli, montaż profila startowego pergoli, Tarasola przyścienna moduły, pergola tarasowa modułowa, Pergola tarasola przyścienna, odprowadzanie wody pergoli ściennej, Pergola Elegancy Tarasola przyścienna, pakiet materiału pergola tarasowa