Masz pytania? Potrzebujesz pomocy? Zadzwoń +48 518 075 074

Menu

Pergola Elegancy – Wolnostojąca – Pomiar i Dane techniczne

Pergola Elegancy – Wolnostojąca – jak mierzyć

S=Szerokość pergoli, W=Wysięg pergoli


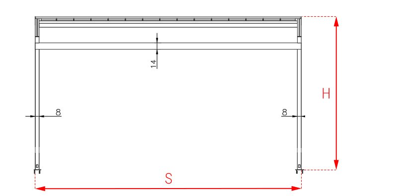
Widok z boku

W=Wysięg pergoli
H1=Wysokość profila podporowego (standard 230cm)
H=Wysokość pergoli
– Belka spinająca


Widok od przodu

S=Szerokość pergoli
H=Wysokość pergoli


Widok z boku

W=Wysięg pergoli
H=Wysokość pergoli


Pergola Elegancy – Wolnostojąca – Dane techniczne


Rozstaw stóp pergoli

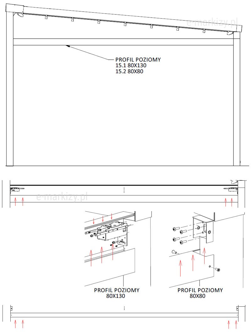
Przekroje profili:

– Profil prowadnicy
– Profil podporowy


Pakiet materiału

Wysokość pakietu hp zależy od rozstawu pomiędzy belkami przeciwwietrznymi. Na życzenie można zmniejszyć odległość między belkami, jednocześnie zmniejszając wysokość pakietu


Spadek dachu

Sposób liczenia spadku dachu oraz zależności rozstawu prowadnic


Mocowanie podpór

Podpory pergoli standardowo mocowane są bezpośrednio do podłoża. Za dopłatą, możliwe są podkładki montażowe dopasowane do rodzaju odprowadzania wody z konstrukcji. Podkładki montażowe są wykonane ze stali nierdzewnej nielakierowanej.


Odprowadzenie wody

– Frontowe
– Dolne


Pergola modułowa – Wymiary

Pergola Elegancy Wolnostojąca występuje w pojedynczym module do 500cm szerokości. Pergole możemy łączyć ze sobą w różnych konfiguracjach (również niesymetrycznie np. pergola o szerokości 400cm połączona z pergolą o szerokości 270cm).

*Prowadnica zawsze w osi nogi


Pergola Komponenty
Lista elementów pergoli:

1. PROWADNICE
2. PROFIL PODPOROWY PRZEDNI
3. RYNNY
4. PROFIL SPINAJĄCY
5. PROFIL BOCZNY 80×130
6. PROFIL BOCZNY 80×80

Pergola Elegancy Komponenty
Lista elementów pergoli:

7. PROFIL STARTOWY
8. MASKOWNICA GÓRNA
9. PROFIL NAPĘDU
10. OBRÓBKA BLACHARSKA
11. DASZEK SYSTEMOWY

Pergola Wolnostojąca
Elementy wersji wolnostojącej:

A. PROFIL PODPOROWY TYLNY
B. PROFIL TYLNY 80×130


Tkanina pergoli – elementy konstrukcji

Belki pergoli:
belka frontowa,
belka środkowa,
belka tylna
Wózki tkaniny:
wózek frontowy,
wózek środkowy,
wózek końcowy


Przykładowy Montaż Pergoli Wolnostojącej


Belkę tylną należy wsunąć na kostki zamocowane do profila podporowego tylnego.
Po połączeniu profili podporowych tylnych z belką tylną, należy zaślepić profile zaślepką górną nogi za pomocą wkrętów 3,5x 16.


Profil tylny startowy należy przymocować do belki tylnej za pomocą wkrętów 4,8×19



Element należy wsunąć do profila, nastepnie skręcić śrubą M6x14 z kostką znajdującą się w porcie nogi.



Montaż profilu bocznego 80×130
Montaż profilu bocznego 80×80


pergola tarasowa, zadaszenie tarasu rozsuwane, pergola tarasowa z ruchomą osłoną, osłona tarasowa pcv, zadaszenie tarasu z poliwęglanu, konstrukcja aluminiowa na wymiar, konstrukcja aluminiowa ogrodu zimowego, pergola aluminiowa sklep internetowy, pergola aluminiowa allegro, pergola aluminium, pergole tarasowe, zadaszenie pergola, zadaszenie tarasu z płótna, pergola na raty, pergola ogrodowa, pergola na balkon, pergola na taras, markiza pergola wycena, pergola obi, pergola aluminiowa castorama, pergola aluminiowa cena, konstrukcja ekstrudowane aluminium, konstrukcja profile nośne aluminiowe, aluminiowa konstrucja tkaninowy dach, pergola z oświetleniem, pergola z promiennikami ciepła, markiza pergola odporna na wiatr, odporność na wiatr, pergola premium, pergola wolnostojąca, pergole wolnostojące sklep internetowy, pergola wolnostojąca cena, pergola nowoczesna wolnostojąca, Pergola Elegancy wolnostojąca dane techniczne, przekrój profili pergoli, rozstaw stóp pergoli, pergola tarasowa widok przedni, Tarasola wolnostojąca dane techniczne, pergola widok boczny, belki dodatkowe do pergoli wolnostojącej, Pergola wolnostojąca moduły, łączenie pergoli modułowo, odprowadzanie deszczówki w pergoli wolnostojącej