Masz pytania? Potrzebujesz pomocy? Zadzwoń +48 518 075 074

Menu

Pergola Flat – Wolnostojąca – Pomiar i Dane Techniczne

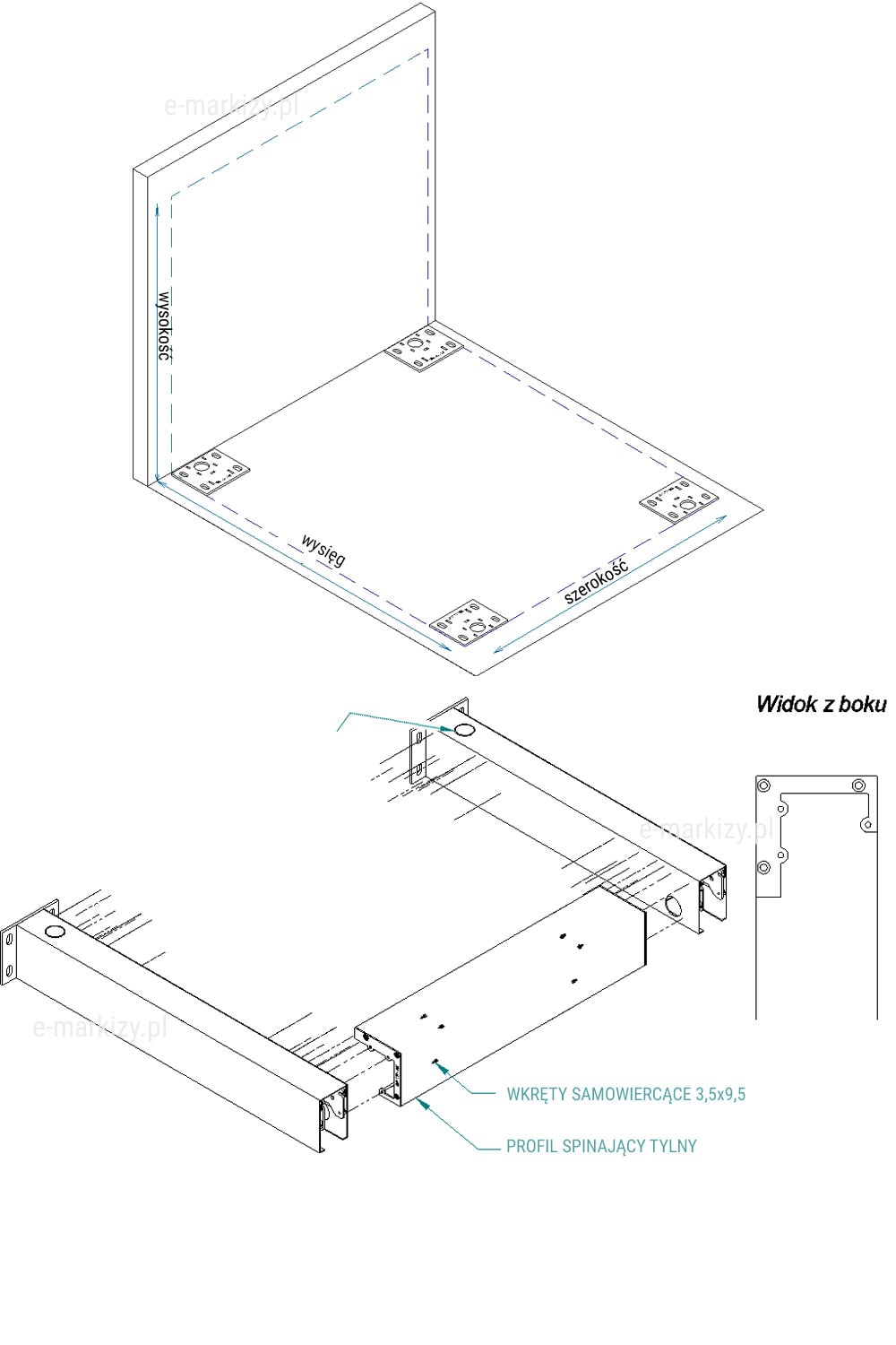
Pergola Flat – Wolnostojąca – jak mierzyć

S=Szerokość pergoli, W=Wysięg pergoli


Widok z boku z rozwiniętą tkaniną (z profilem rynnowym)

W=Wysięg pergoli
H1=Wysokość podpory pergoli (standard 270cm)


Widok od przodu

S=Szerokość pergoli
H=Wysokość podpory pergoli +2cm


Widok od przodu – moduły

S=Szerokość całkowita konstrukcji modułowej
S1, S2, S3=Szerokość poszczególnych modułów


Pergola Flat – Wolnostojąca – Dane techniczne

Konstrukcja wykonana z ekstrudowanego aluminium. Sterowanie silnikiem elektrycznym w standardzie. Tkanina zadaszenia Driplux w standardzie (za dopłatą możliwość wymiany na inny rodzaj materiału). Możliwość lakierowania proszkowego na dowolny kolor RAL. Pergola Tarasola Flat występuje w wersji przyściennej i wolnostojącej. Możliwość łączenia modułowego. Produkt odporny na siłę wiatru do 120 km/h.
Możliwość wyboru wyposażenia dodatkowego:
– oświetlenie
– daszek systemowy chroniący tkaninę
– przeszklenia
– rolety screener
– promienniki ciepła
– czujniki wiatrowe, słoneczne i deszczowe

Rozstaw stóp pergoli


Odprowadzenie wody

– Frontowe
– Dolne


Przekrój rynny – odpływ wody

Profil podporowy – przekrój


Pakiet materiału

Wysokość pakietu hp zależy od rozstawu pomiędzy belkami przeciwwietrznymi. Na życzenie można zmniejszyć odległość między belkami, jednocześnie zmniejszając wysokość pakietu


Pergola modułowa – Wymiary

1 moduł: szerokość 201-450cm
2 moduły: szerokość 451-900cm
3 moduły: szerokość 901-1300cm

*Prowadnica zawsze w osi nogi


Mocowanie podpór

Podpory pergoli standardowo mocowane są bezpośrednio do podłoża. Za dopłatą, możliwe są podkładki montażowe dopasowane do rodzaju odprowadzania wody z konstrukcji.


Pergola Flat – Widok ogólny


Pergola Flat – Widok z boku, rzut boczny


Pergol Flat – Widok z góry, rzut górny


Pergola Flat Komponenty
Lista elementów pergoli:

1. PROWADNICE
2. PROFIL PODPOROWY PRZEDNI I TYLNY
3. PANEL BOCZNY Z RYNNĄ
4. PRZEDNI PROFIL SPINAJĄCY
5. PROFIL TYLNY SPINAJĄCY

Pergola Flat Komponenty
Lista elementów pergoli:

6. PROFIL NAPĘDU
7. OBRÓBKA BLACHARSKA
TNA.201.01 (wał wewnętrzny)
TNA.202.01 (wał zewnętrzny)
8. DASZEK SYSTEMOWY
9. PROFIL SPINAJĄCY
10. PROFIL SPINAJĄCY


Tkanina pergoli – elementy konstrukcji

Belki pergoli:
belka frontowa,
belka środkowa,
belka tylna
Wózki tkaniny:
wózek frontowy,
wózek środkowy,
wózek końcowy


Schemat oznaczenia profili podporowych



Przykładowy Montaż Pergoli Wolnostojącej

Profil spinający tylny należy wsunąć między profile podporowe i połączyć wkrętami samowiercącymi 3,5×9,5.
∗∗ Tylny profil spinający zawiera przygotowane wycięcie pod montaż Motorbox’a.



Powstałe połączenie prowadnicy i przedniego profila podporowego, należy przesunąć w stronę tylnej bramki.
Prowadnicę należy połączyć z tylną bramką, wsuwając uchwyt prowadnicy wewnątrz profila tylnego podporowego za pomocą śrub M6x6szt


Przed montażem profila spinającego należy dokonać demontażu zaślepki profila.
Resztę komponentu należy połączyc z profilem przednim podporowym montując kostkę profila spinajacego, korzystając z ówczesniej przygotowanych otworów.
W profilu podporowym, za pomocą śrub M6x25 oraz wkrętów samowiercących 3,5×9,5


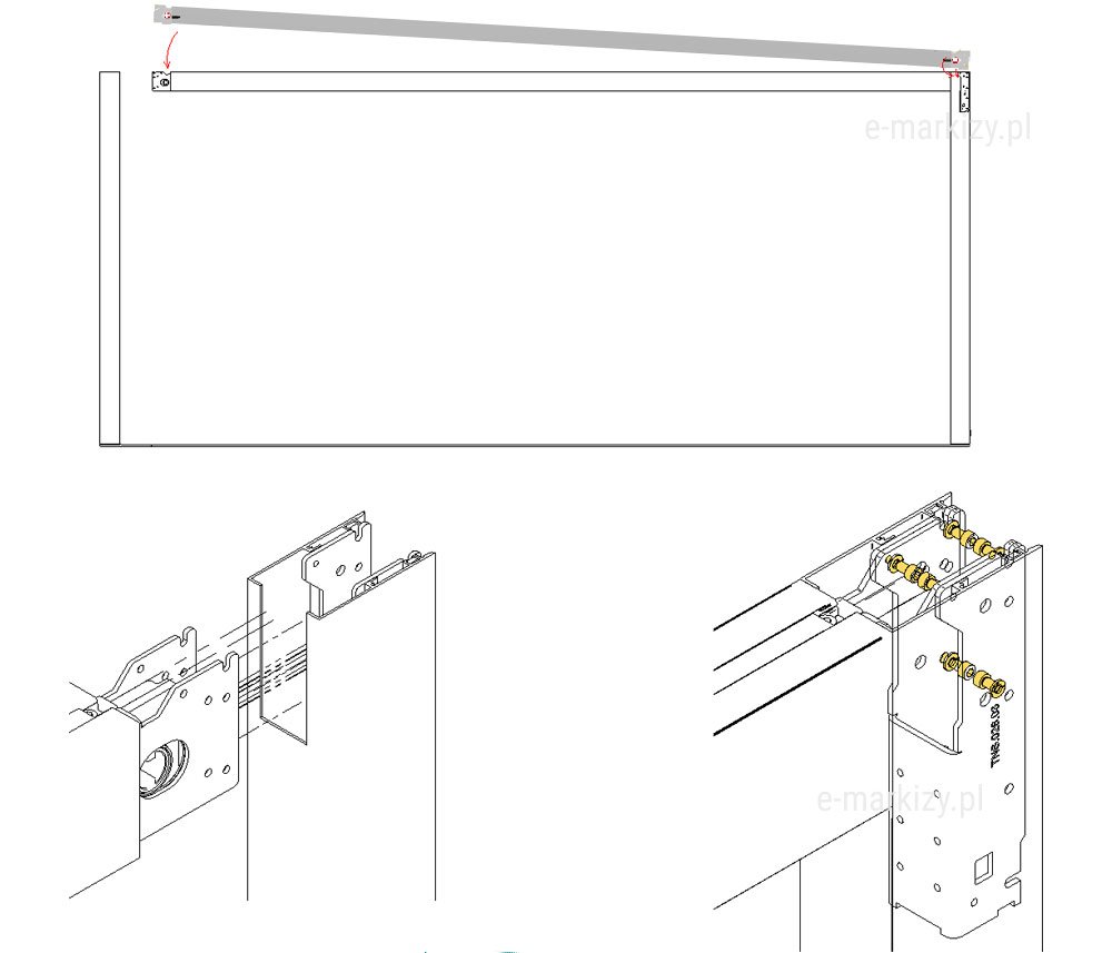
Profil spinający zawiera w swoim składzie złożenie Motorbox’a.
Wsunąć profil spinający (kierunek ruchu obrazują strzałki i przykręcić śrubą M6x16


Nasuń stopy na elementy mocujące, podnosząc je do góry aby ominąć śruby, a następnie skręć śrubami M6, do kostek umieszczonych w portach nogi.
Zamontuj dolną wylewkę wody w profilu i Zainstaluj zaślepkę nogi.


Profil spinający 80×80 należy wsunąć w uchwyt (kierunek ruchu obrazują strzałki) i przykręcić śrubą M6x2szt.


Panel boczny z rynną montowany jest z prawej lub lewej strony pergoli. Służy do odprowadzania wody. Stronę montażu ustalamy podczas zamówienia, w zależności od potrzeb. Woda odprowadzana jest do rynny, a następnie spływa przednią podporą.
Panel boczny z rynną pełni też funkcję wizualną. Zakrywa on przestrzeń między belkami. W razie potrzeby możemy też zamontować taki panel po przeciwnej stronie pergoli (nie będzie on wtedy odprowadzał wody).
Panel boczny z rynną należy wsunąć między profile podporowe, po stronie odprowadzenia wody.
A – rynna pergoli, B – panel boczny rynny



Moduł tkaniny pergoli jest fabrycznie złożony i gotowy do instalacji na konstrukcję pergoli. Moduł tkaniny składa się z belek przeciw wietrznych. Do każdej z belek, doczepione są pasy tkaniny. Cały model należy wpiąć w wózki prowadzące (które są zainstalowane fabrycznie w prowadnice pergoli).
*Aby ułatwić czynność instalacji modułu tkaniny, najlepiej użyć rusztowania lub drabin, aby podtrzymać tkaninę możliwie blisko wózków prowadzących.


Końcową częścią modułu tkaniny jest belka tylna, do której doczepiony jest końcowy pas tkaniny (tzw. worek) (rys. A1). Worek należy zamocować do poprzednio zamontowanego profila (rys. A2).

Umieścić pakiet tkaniny na rusztowaniu w bliskiej odległości od prowadnic.
Montaż należy zacząć od zamocowania belki frontowej.


Opcjonalnie, pergolę możemy doposażyć w daszek ochronny. Chroni on tkaninę przed zabrudzeniami podczas jej całkowitego zwinięcia. Daszek składa się z pojedynczych paneli, które kolejno do siebie dokładamy.

Zainstaluj kątownik montażowy do tylnego profila spinającego, za pomocą wstęgi butylowej oraz wkrętów samowiercących.
Montaż obróbki bocznej daszka systemowego
– przyklej wstęgę butylową
– przyłóż próbkę do bocznej ściany prowadnicy i dokręć wkrętami samowiercącymi,
– powtórz czynność na przeciwległej prowadnicy

Wykonanie ostatniego panelu daszka systemowego
Wsuń docięty panel pod boczną obróbkę daszka oraz zablokuj wkrętem samowiercącym

Montaż kątownika frontowego dla daszka systemowego
Zainstaluj kątownik maskujący:
– przyłożyć kątownik z uchwytami do krawędzi belki poddaszkowej
– przykręcić wiertłem samowiercącym z podkładką epdm do belki poddaszkowej



Pergola Flat - Wolnostojąca - Dane Techniczne - Pergola przeciwdeszczowa, Pergola odporna na deszcz, Zadaszenie tarasu przeciwdeszczowe, odprowadzanie wody z pergoli, pergola ukryte rynny, pergola rynny odprowadzające wodę, odprowadzanie deszczówki, pergole z rynnami, zadaszenie tarasu z rynną, przekrój rynny pergoli, pergola na taras rynny, pergola na taras odpływ wody, pergola tarasowa, zadaszenie tarasu rozsuwane, pergola tarasowa z ruchomą osłoną, osłona tarasowa pcv, zadaszenie tarasu z poliwęglanu, konstrukcja aluminiowa na wymiar, konstrukcja aluminiowa ogrodu zimowego, pergola aluminiowa sklep internetowy, pergola aluminiowa allegro, pergola aluminium, pergole tarasowe, zadaszenie pergola, zadaszenie tarasu z płótna, pergola na raty, pergola ogrodowa, pergola na balkon, pergola na taras, markiza pergola wycena, pergola obi, pergola aluminiowa castorama, pergola aluminiowa cena, Pergola soft, pergola decor, Pergola, pergola aluminiowa, pergola na taras, pergola nowoczesna, pergola ogród, pergola taras, pergola tarasowa, zadaszenia tarasu, Pergola Tarasola wolnostojąca, pergola tarasowa wolnostojąca, pergola ogrodowa przenośna, pergola z tkaniną falowaną, pergola na taras, pergola z dwoma ramionami, Pergola tkaninowa dachowa, pergola dach przeciwsłoneczny, pergola restauracyjna,pergola nowoczesna, pergola na balkon, pergola na taras, Pergola na ogródek, pergola narożnikowa, pergole narożnikowe, pergole w ogrodzie, pergole na zamówienie, Pergola przenoszona, pergola ruchoma na taras, pergola z dwoma ramionami, aluminiowa pergola, aluminiowe pergole, aluminiowe pergole, aluminiowe zadaszenie tarasu z ruchomym dachem, automatyczne zadaszenie tarasu, elektryczne zadaszenie tarasu, nowoczesne pergole, nowoczesne pergole na taras, nowoczesne zadaszenia tarasów, nowoczesne zadaszenie tarasu, otwierane zadaszenia tarasów, pergola aluminiowa, pergola aluminowa, pergola automatyczna, pergola elektryczna, pergola lamelowa, pergola materiałowa, pergola na taras, pergola na tarasie, pergola nad tarasem, pergola przeciwsłoneczna, pergola przy tarasie, pergola rozsuwana, pergola ruchoma, pergola składana, pergola taras, pergola tarasowa aluminiowa, pergola tarasowa cena, pergola tarasowa wolnostojąca, pergola tarasowa z ruchomą osłoną, pergola tarasowa zwijana, pergola z materiału, pergola z rozsuwanym dachem, pergola z rozsuwanym zadaszeniem, pergola z ruchomym dachem, pergola z zadaszeniem, pergola z zasłonami, pergola zadaszenie, pergola zadaszenie tarasu, pergola ze zwijanym dachem z materiału, pergole aluminiowe producent, pergole automatyczne, pergole elektryczne, pergole lamelowe, pergole materiałowe, pergole na taras warszawa, pergole nowoczesne, pergole składane, pergole tarasowe aluminiowe, pergole tarasowe ceny, pergole z materiału, pergole zadaszenia tarasów, pergole zwijane, producent zadaszeń tarasowych, rozkładane zadaszenie tarasu, rozsuwane zadaszenie tarasu, ruchome zadaszenia tarasów, ruchome zadaszenie tarasu, składane zadaszenie tarasu, system zadaszenia tarasu, taras drewniany zadaszony, taras pergola, taras z pergolą, taras z zadaszeniem, taras zadaszenia, taras zadaszenie zwijane, tarasy pergole, tarasy zadaszenia, zabudowa tarasu zabudowa tarasów tarasy zadaszenia, zadaszenia aluminiowe, zadaszenia na taras, zadaszenia na tarasy, zadaszenia ogrodowe, zadaszenia pergoli, zadaszenia tarasowe, zadaszenia tarasów, zadaszenia tarasów rozsuwane, zadaszenia tarasy, zadaszenie na taras, zadaszenie nad tarasem, zadaszenie ogrodowe, zadaszenie pergoli, zadaszenie przeciwsłoneczne, zadaszenie tarasowe, zadaszenie tarasów, zadaszenie tarasu, zadaszenie tarasu aluminium, zadaszenie tarasu automatyczne zadaszenie tarasu cennik, zadaszenie tarasu cena, zadaszenie tarasu elektryczne, zadaszenie tarasu nowoczesne, zadaszenie tarasu pergola, zadaszenie tarasu projekt, zadaszenie tarasu rozsuwane, zadaszenie tarasu rozsuwane, zadaszenie tarasu ruchome, zadaszenie tarasu ruchome lamele, zadaszenie tarasu skladane, zadaszenie tarasu z roletą przeciwsłoneczną, zadaszenie tarasu zwijane, zadaszenie tarasu żaluzje, zadaszony taras, zwijane zadaszenie tarasu, zwijane zadaszenie tarasu, lekka pergola