Masz pytania? Potrzebujesz pomocy? Zadzwoń +48 518 075 074

Menu

Pergola Square Przyścienna – Pomiar i Dane Techniczne

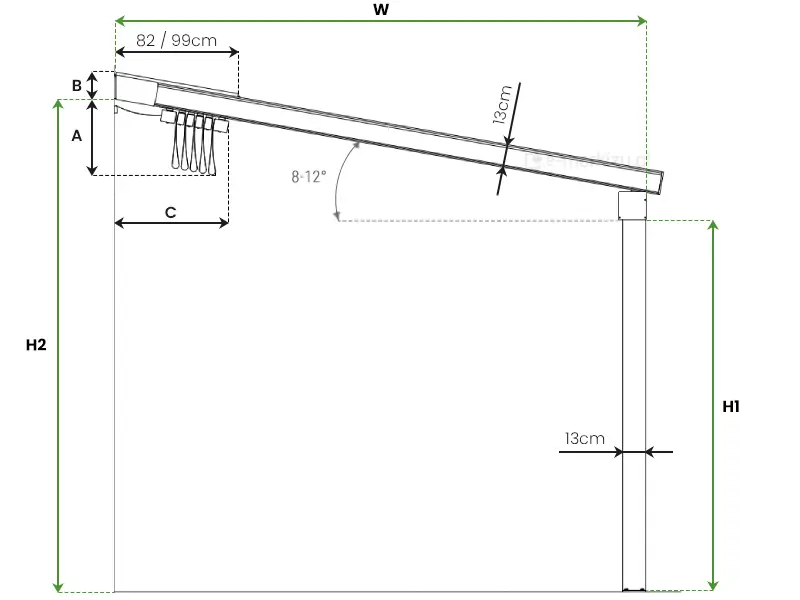
Pergola Square Przyścienna – Pomiar

W – wysięg pergoli
S – szerokość pergoli

Zależnie od szerokości, pergola tarasowa występuje w różnych konfiguracjach:

S od 200 do 500cm = 1 moduł, 2 stopy
S od 501 do 600cm, wysięg od 200 do 500cm = 2 moduły, 2 stopy
S od 501 do 600cm, wysięg od 501 do 700cm = 2 moduły, 3 stopy
S od 601 do 900cm = 2 moduły, 3 stopy

Wyceń Pergolę – Kliknij Tutaj


W – wysięg pergoli
H1 – wysokość stopy pergoli, standard 230cm (można wykonać niższą lub wyższą, opcja dodatkowo płatna)
H2 – wysokość montażu do ściany uzależniona od kąta pochyłu oraz wysięgu pergoli

Daszek – 82cm do wysięgu 450cm, 99cm powyżej

A – wysokość zwiniętego pakietu tkaniny
B – wysokość panelu ściennego
C – szerokość zwiniętego pakietu tkaniny

Wysieg W [cm] A [cm] C [cm] Liczba belek
250 34 60 5
300 35 65 6
350 39 65 6
400 39 70 7
450 40 76 8
500 40 81 9
550 41 86 10
600 42 91 11
650 44 91 11
700 45 96 12

H1=Wysokość profila podporowego (standard 230cm) (możliwość wykonania niższych lub wyższych podpór. Podpory powyżej 240cm są nie zalecane i wykonywane są opcjonalnie bez gwarancji)

X=Wysokość elementów nad podporą na którą składają się wysokość prowadnicy oraz rynny. Wartość zależna od kąta pochyłu pergoli, min. 28cm


Pergola 1 moduł

S – szerokość pergoli
H1 – wysokość stopy pergoli, standard 230cm (można wykonać niższą lub wyższą, opcja dodatkowo płatna)


Pergola 2 moduły

S – szerokość pergoli
H1 – wysokość stopy pergoli, standard 230cm (można wykonać niższą lub wyższą, opcja dodatkowo płatna)


Łączenie wielu pergoli

Wspólny słup – rozwiązanie dla długich ciągów pergol. W ten sposób można uzyskać szerokość nawet 2x900cm


Zalecany spadek dachu

Zalecany spadek min. 8°:
C = 215mm (mm/1m wysięgu)
H1 – wysokość stopy pergoli,standard 230cm (można wykonać niższą lub wyższą)
H2 – wysokość montażu przy ścianie uzależniona od kąta pochyłu oraz wysięgu pergoli


Pergola Square Przyścienna – Dane Techniczne

Komponenty pergoli:

  1. 1. Prowadnica
    2. Słup
    2a. Stopa
    3. Rynna
    4. Belka napinająca
    5. Belka tkaninowa
    6. Belka usztywniająca
    8. Profil prowadnicy
    9. Rura stalowa
    10. Daszek sytemowy
    13. Zespół napędowy
    14. Tkanina dachu

Profile konstrukcyjne pergoli:

  • Szyna
  • Słup
  • Rynna
  • Belka napinająca
  • Belka tkaninowa
  • Profil przyścienny
  • Prowadnica Pergoli 80x130mm
  • Podpora Pergoli 80x130mm
  • Rynna odpływowa 155×147,5
  • Belka silnikowa
  • Belka napinająca
  • Belka tkaniny
  • Uszczelka
  • Profil zasłony
  • Okapnik
  • Ramka daszka
  • Keder 8mm

Stopy pergoli – przekroje


Odpływ wody z pergoli

Woda jest odprowadzana do frontu konstrukcji, przez podpory frontowe


Systemowy daszek pergoli w standardzie


Panel SKY

Opcjonalny pasek przezroczystego materiału „crystal”.

Panel SKY wykonany jest ze specjalnego przezroczystego materiału crystal. Zapewnia on pas świetlika w tkaninie, zmniejszając stopień zaciemnienia wewnątrz pergoli.

Przezroczysty panel SKY sugeruje się umiejscawiać jako drugie pole tkaniny od daszka.


Trójkąt boczny pergoli

Montaż opcjonalnych trójkątów bocznych z tkaniną pozwala na dodatkowe osłonięcie górnych boków pergoli.

Do  montażu trójkąta zamykającego wymagany jest profil boczny.

Dodatkowa zabudowa pergoli może powodować zmniejszenie odporności konstrukcji na wiatr.


Kedry przeciwwietrzne w standardzie


Uszczelka boczna prowadnicy w standardzie


Zintegrowana rynna odprowadzająca wodę w standardzie


Zintegrowany ZIP-78 na froncie pergoli


Zespół napędowy składa się z silnika elektrycznego umieszczonego wewnątrz przekładni dwustronnej przekazującej moment obrotowy do wszystkich kół zębatych jednocześnie poprzez stalowe rury. Całość jest dyskretnie schowana pod nieruchomym daszkiem i zasłonięta od spodu tkaniną.


Tkanina połączona z belkami przemieszcza się wzdłuż prowadnicy za pomocą wózków tocznych ciągniętych przez pas zębaty. Umieszczona w profilu prowadnicy uszczelka zapobiega rozpływaniu się wody deszczowej na boki pergoli.


Belki przeciwwietrzne stanowią podparcie dla tkaniny zapobiegając jej nadmiernemu obwieszeniu pod obciążeniem od wiatru i wody. Dodatkowo w odstępach około 120 cm w kierunku wysięgu w tkaninę wygrzany jest profil keder połączony z belką w celu wyeliminowania podwiewania tkaniny.


Woda deszczowa spływa po tkaninie w kierunku rynny w której jest ona zbierana oraz odprowadzana do słupów. Rynna stanowi węzeł konstrukcyjny integrujący prowadnice ze słupami.


Punktowe oświetlenie LED o ciepłej barwie może być zainstalowane na wybranych belkach tkaninowych. Przewód zasilający jest całkowicie ukryty w kieszeni przygrzanej wzdłuż krawędzi tkaniny.


Woda odprowadzana jest z rynny przez wszystkie słupy i wypływa na zewnątrz przez otwór spustowy zlokalizowany od frontu pergoli.


Strona dotyczy pergoli tarasoowej Square firmy Mol wykonywanej na wymiar zgodnie z informacjami podanymi podczas zamówienia w konfiguratorze produktu. Więcej informacji można znaleźć w konfiguratorze lub na pozostałych podstronach produktu.

Pergola modułowa square pomiar, Pergola square pomiar szerokości, wymiary pergoli, Pergola square pomiar wysięgu, wymiary pergoli, Pergola square przyścienna wymiarowanie, jak mierzyć pergole square, Pergola square zalecany spadek, pochylenie pergoli, Pergola wielomodułowa square pomiar, Pergola square kedry przeciwwietrzne, Pergola square profile konstrukcyjne, belka napinająca tkaninę, belka tkaninowa, profil przyścienny, szyna, słup pergoli, rynna odprowadzająca wodę, Pergola square stopa dane techniczne, stopa standardowa, stopa do wnęki, Pergola square systemowy daszek, zintegrowany daszek pergoli, Pergola square uszczelka boczna pergoli, Pergola square zintegrowana rynna odprowadzająca wodę, Refleksol zip do pergoli square mo, ZIP-78 na froncie pergoli,