Masz pytania? Potrzebujesz pomocy? Zadzwoń +48 518 075 074

Menu

Pergola Wolnostojąca Solid Selt – Jak mierzyć? – Pomiar pergoli

Wymiary pergoli – jeden moduł

S=Szerokość pergoli (max. 400cm)
W=Wysięg (max. 700cm)

Wysokość podpory H1=250cm (max. 300cm)
Wysokość maksymalna H=405,3cm (góra mocowania ściennego)
Wysokość do belki bocznej 235cm

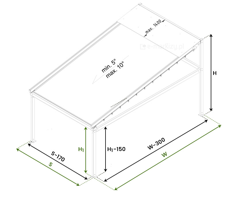
Możliwy kąt pochyłu: min. 5°, max. 10°

Podane wyżej wymiary odnoszą się do standardowej wysokości podpór H1 – ta może być zmieniona na życzenie klienta, w takim wypadku pozostałe wartości także ulegną zmianie.

Wysokość całkowita w szczycie konstrukcji

• wysięg 400cm, kąt pochyłu 5° = 3188mm
• wysięg 400cm, kąt pochyłu 10° = 3528mm

• wysięg 500cm, kąt pochyłu 5° = 3275mm
• wysięg 500cm, kąt pochyłu 10° = 3704mm

• wysięg 700cm, kąt pochyłu 5° = 3450mm
• wysięg 700cm, kąt pochyłu 10° = 4057mm

*wymiary orientacyjne przy standardowej wysokości H1=250cm, decyduje technologia produkcji


Mocowanie belki prowadzącej do podpory tylnej


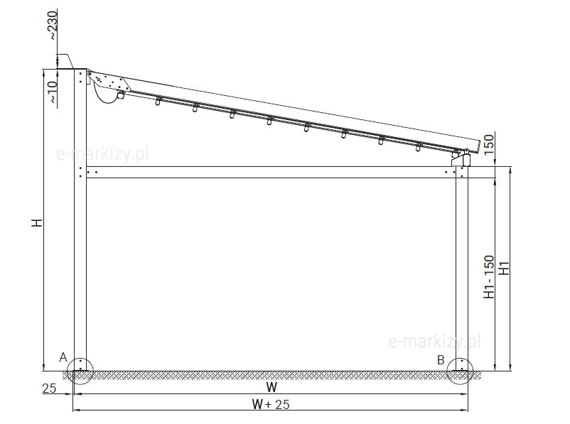
Wymiary Pergoli – Wysięg

H1 – wysokość pod belką przednią (w świetle)
W – wysięg systemu (max 7 m)
H – wysokość z tyłu systemu (do końca słupa wysokiego)

25mm – wymiar wystającej części marki montażowej
Szczegóły A, B – Zobacz dane techniczne


Wymiary Pergoli – Szerokość

H1 – wysokość pod belką przednią (w świetle)
S – szerokość systemu (max 4 m)
H – wysokość z tyłu systemu (do końca słupa wysokiego)
Szczegół C – Zobacz dane techniczne


Belka przednia pergoli

Przednia belka pergoli Solid nie jest uwzględniana przy pomiarze szerokości (S)


Przekrój boczny pergoli – wymiary


Pergola Solid – 2 moduły

S – szerokość pergoli max. 800cm
W – wysięg pergoli max. 700cm
H1 – wysokość słupów przednich 250cm (max. 300cm)


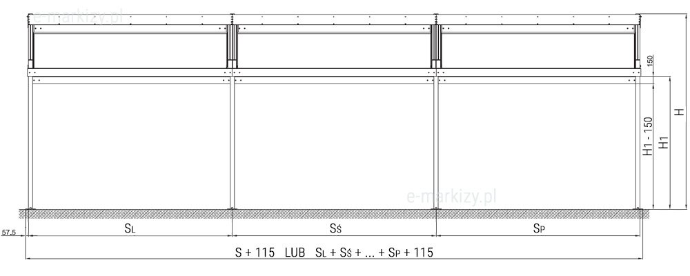
Pergola Solid – 3 moduły

Wymiarowanie poszczególnych modułów pergoli z uwzględnieniem wspólnych podpór wewnętrznych


Narożnik przedni – przekrój


Sposób wymiarowania systemu w wersji wolnostojącej wielomodułowej

Dla wersji wielomodułowej wymiary przyjmuje się jak dla analogicznych systemów jednomodułowych.
Różnica tkwi w podawaniu wymiarów szerokości systemu.
H1 – wysokość pod belką przednią (w świetle)
H – wysokość z tyłu systemu (do końca słupa wysokiego)
SL – szerokość skrajnego lewego modułu systemu (max 4000 mm)
SŚ – szerokość środkowych modułów systemu (max 4000 mm)
SP – szerokość skrajnego prawego modułu systemu (max 4000 mm)