Refleksol 103 – Sposoby montażu
Roleta typu refleksol 103, może być mocowana na zewnątrz budynku lub wewnątrz pomieszczenia. W zależności od wybranej opcji, stosuje się różne prowadnice i konfiguracje.
REFLEKSOL 103 – PROWADNICE LISTWOWE GC30F I GC30 DO MONTAŻU NA ZEWNĄTRZ LUB WEWNĄTRZ POMIESZCZEŃ
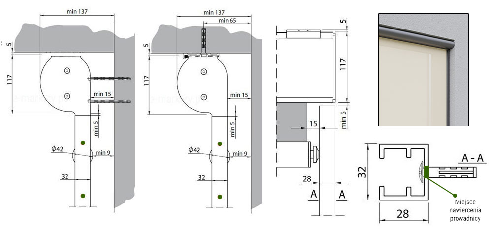
1. Prowadnice listwowe. Montaż na uchwytach do ramy/ściany kaseta samonośna – Montaż na Zewnątrz i Wewnątrz
Montaż prowadnic GC30F na regulowanych uchwytach do powierzchni czołowej np. ramy/okna/ściany. Kaseta jest samonośna tzn. zamocowana jest tylko na prowadnicach.
W tej opcji, prowadnice aluminiowe montujemy do ramy okna/ściany (do powierzchni czołowej) na uchwytach mocujących. W ofercie do wyboru dwa rodzaje uchwytów. Uchwyt „owalny” stały i uchwyt „wzdłużny” regulowany. Uchwyty spełniają taką samą funkcję i równią się tylko wyglądem i regulacją.
* L= stały wymiar 57mm (Standard), uchwyt „owalny”
* L= stały wymiar 100mm (Opcja), uchwyt „owalny”
* L= stały wymiar 180mm (Opcja), uchwyt „owalny”
* L= stały wymiar w zakresie 57-180mm (Opcja), uchwyt „owalny”
* L= regulacja od 39-45mm (Opcja), uchwyt „wzdłużny”
* L= regulacja od 52-58mm (Opcja), uchwyt „wzdłużny”
Ilość uchwytów dobierana jest automatycznie, proporcjonalnie do wysokości prowadnic.
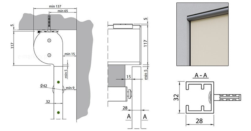
2. Prowadnice listwowe. Montaż bez uchwytów do wnęki kaseta samonośna – Montaż na Zewnątrz
Montaż prowadnic bezpośrednio do bocznej powierzchni wnęki (bez uchwytów prowadnic). Kaseta jest samonośna tzn. zamocowana jest tylko na prowadnicach.
– Prowadnice GC30F należy przewiercić we własnym zakresie (na wylot) w kilku miejscach w zależności od długości prowadnicy. Powstałe, czołowe otwory, należy zaślepić zaślepką pcv. Zaślepki występują tylko w kilku kolorach (nie są lakierowane pod kolor konstrukcji)
3. Prowadnice listwowe. Montaż bez uchwytów do wnęki kaseta niesamonośna Montaż na Zewnątrz
Montaż prowadnic GC30 bezpośrednio do bocznej powierzchni wnęki (bez uchwytów prowadnic). Kaseta jest niesamonośna, tzn. przykręcana jest do ściany lub do sufitu.
– Prowadnice należy przewiercić we własnym zakresie (na wylot) w kilku miejscach w zależności od długości prowadnicy. Powstałe, czołowe otwory, należy zaślepić zaślepką pcv. Zaślepki występują tylko w kilku kolorach (nie są lakierowane pod kolor konstrukcji)
Prowadnice (GC30) mocowane są bezpośrednio (bez uchwytów) do powierzchni bocznej wnęki okna. Aby zamocować prowadnice, należy przywiercić je w kilku miejscach i przytwierdzić do wnęki. Przy tym sposobie montażu, kaseta jest przytwierdzana do ściany za pomocą wkrętów (Rys. A) lub do sufitu za pomocą klipów sufitowych dołączonych do zestawu (Rys. B). Prowadnice należy przewiercić we własnym zakresie (na wylot).
REFLEKSOL 103 – PROWADNICE LISTWOWE GC30 I G80 DO MONTAŻU WEWNĄTRZ POMIESZCZEŃ
Prowadnice wąskie (GC30) mocowane są bezpośrednio (bez uchwytów) do powierzchni bocznej wnęki okna. Aby zamocować prowadnice, należy przywiercić je w kilku miejscach i przytwierdzić do wnęki. Przy tym sposobie montażu, kaseta jest przytwierdzana do ściany za pomocą wkrętów lub do sufitu za pomocą klipów sufitowych dołączonych do zestawu.
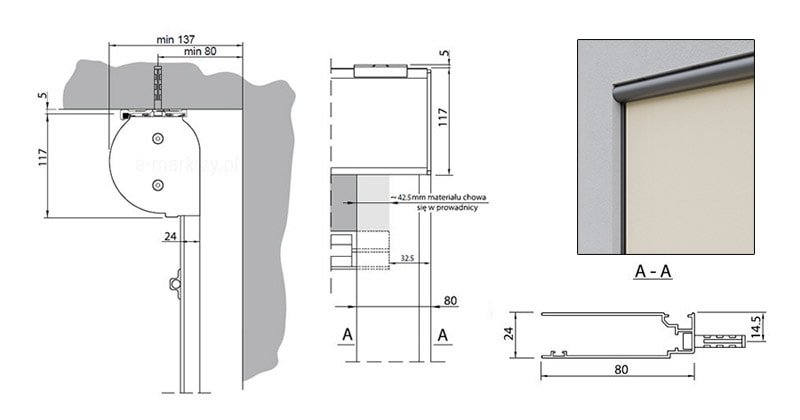
Prowadnice szerokie (G80) stosujemy wyłącznie wewnątrz pomieszczeń. Mocowane są bezpośrednio (bez uchwytów) do powierzchni czołowej np.ramy okna, ściany, itp. Aby zamocować prowadnice, należy użyć specjalnych nasadek, na które „doczepia się” prowadnice. Przy tym sposobie montażu, kaseta jest przytwierdzana do ściany za pomocą wkrętów lub do sufitu za pomocą klipów sufitowych dołączonych do zestawu).
Prowadnice (G80) mocowane są bezpośrednio (bez uchwytów) do bocznej powierzchni wnęki okna. Aby zamocować prowadnice, należy przewiercić je w kilku miejscach i przytwierdzić do wnęki. Przy tym sposobie montażu, kaseta jest przytwierdzana do ściany za pomocą wkrętów lub do sufitu za pomocą klipów sufitowych dołączonych do zestawu).
REFLEKSOL 103 – PROWADNICE LINKOWE DO MONTAŻU NA ZEWNĄTRZ LUB WEWNĄTRZ POMIESZCZEŃ
1. Prowadnice linkowe. Montaż do sufitu LUB 2. Do ramy/ściany
Przy wyborze prowadnic linkowych, kaseta refleksola mocowana jest najczęściej bezpośrednio do sufitu (za pomocą klipów) lub do ściany/ramy za pomocą kątownika kasety (rzadziej), możliwe także jest bezpośrednie przykręcenie kasety do powierzchni pionowej (nawierty w kasecie należy wykonać we własnym zakresie). Uchwyty linek mogą być montowane do powierzchni czołowej (np. fasady/ramy/okna) lub ewentualnie do podłoża. W nietypowych sytuacjach, kasetę możemy również przykręcić do powierzchni czołowej nie stosując żadnych uchwytów. W tym celu nawiercamy kasetę refleksola i mocujemy ją bezpośrednio do powierzchni.
Uchwyty linek mogą być montowane do powierzchni czołowej np. ramy/okna/fasady/ściany lub ewentualnie do podłoża-podłogi. Do uchwytu mocujemy specjalny napinacz linki, którego pozycję możemy regulować w pewnych zakresach. Napinacz pełni również funkcję naciągania linki (prowadnicy linkowej).
Uchwyty linki występują w różnych długościach i są regulowane w zakresach:
* L= regulacja od 15-36mm (Standardowa długość)
* L= regulacja od 29-50mm (Opcja-rzadziej stosowana długość)
* L= regulacja od 55-76mm (Opcja-rzadziej stosowana długość)
SPOSOBY MONTAŻU – RENDERY
![]() |
Refleksol 103 Selt| Kaseta przykręcana do ściany lub sufitu |
![]() |
Refleksol 103 Selt| Kaseta samonośna |
![]() |
Refleksol 103 Selt| Kaseta samonośna |
![]() |
Refleksol 103 Selt| Kaseta samonośna |
![]() |
Refleksol 103 Selt| Kaseta samonośna |
![]() |
Refleksol 103 Selt| Kaseta samonośna |
![]() |
Refleksol 103 Selt| Kaseta przykręcana |
Refleksol 103 - Sposoby montażu- Refleksole zewnętrzne, refleksole montaż, rolety pionowe, refleksol 90, refleksol selt, refleksole cena, refleksole allegro, refleksole montaż, refleksole cena, refleksole producent, refleksole zalety, refleksole na okna, refleksole xl, refleksole na wymiar montaż, rolety pionowe refleksol, refleksole na okna, refleksole zaciemniające montaż, materiał na refleksole, refleksole na okna dachowe, roleta refleksol, rolety screen montaż, roleta screen na wymiar, rolety refleksol 103, refleksol 120, rolety refleksole montaż






