Masz pytania? Potrzebujesz pomocy? Zadzwoń +48 518 075 074

Menu

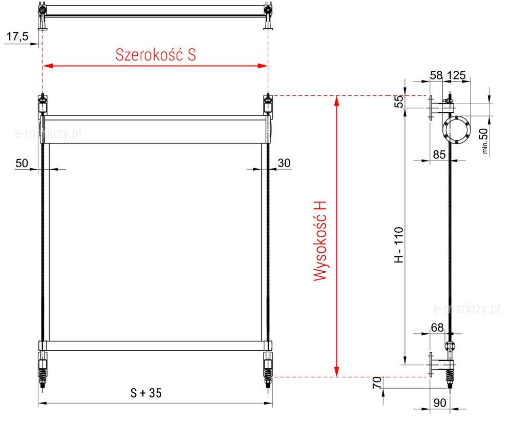
Refleksol 125 – Pomiar – Jak mierzyć?

Wymiarowanie refleksola 125:

S=Szerokość refleksola do 350cm
H=Wysokość systemu do 425cm


Pomiar refleksola z prowadnicami linkowymi

1. Szerokość S – jest to szerokość od osi do osi uchwytu

2. Wysokość H – jest to wysokość całkowita
Wymiary kasety: szer. 125mm


Refleksole modułowe – pomiar refleksoli łączonych

1. Szerokość S – jest to szerokość jednego modułu (w osi uchwytów kasety)

2. Wysokość H – jest to wysokość całkowita

Refleksole modułowe – maksymalna wysokość 850cm


Refleksol 125 – Dane Techniczne

Refleksol 125 – Komponenty

– kaseta refleksola
– pokrywa boczna
– belka dolna
– prowadnice linkowe


Przekroje

– kaseta refleksola
– belka dolna
– prowadnica linka stalowa


Przekrój boczny refleksola 125


Wsporniki refleksola


Maksymalne ściśnięcie sprężyny


Refleksol 125 Selt

Zastosowanie:
Ochrona przeciwsłoneczna i zacienianie pionowych otworów okiennych , fasad, przeszkleń. Przeznaczona na zewnątrz pomieszczeń.
Charakterystyka wyrobu:
– Konstrukcja systemu wykonana jest z ekstrudowanego aluminium, co zapewnia trwałość i wytrzymałość refleksola.
– Napęd elektryczny
– Możliwość montażu modułowego (na wspornikach podwójnych)
– Kaseta mocowana na linach, stanowiących wraz z uchwytami element nośny systemu
– Aluminiowe wsporniki linowe pojedyncze lub podwójne (ścienne) umożliwiają szybki i prosty montaż systemu
– Prosta konstrukcja.
– Wysoka (trzecia) klasa odporności wiatrowej
– Prowadnice linkowe – nierdzewne średnicy 10 mm

– Zapobiega nagrzewaniu się pomieszczeń co w znacznym stopniu ogranicza konieczność wykorzystania urządzeń
klimatyzacyjnych, ogranicza dostęp światła słonecznego i zwiększa udział światła rozproszonego w pomieszczeniu
– Struktura stosowanych tkanin HIGH-T-TEX skutecznie ogranicza powstawanie kontrastów tworzących się podczas wpadania
promieni słonecznych do pomieszczenia
– Ogranicza przenikanie hałasu do wnętrza budynku

PARAMETRY TECHNICZNE REFLEKSOL R125
Szerokość maksymalna: 3,5 m
Wysokość maksymalna: 4,25 m
Kaseta: Okrągła, średnicy 125 mm
Średnica rury nawojowej: 70/78 mm
Belka dolna: Okrągła średnicy 42 mm

Napęd elektryczny, silnik o parametrach:
– napięcie zasilania
230 V ~ 50 Hz – moc
od 120 W do 180 W ( w zależności od typu silnika )
– pobór prądu od 0,5 A do 0,8 A ( w zależności od typu silnika )
– stopień ochrony IP 44
– czas pracy ciągłej 4 min
– moment obrotowy 10 Nm
– prędkość obrotowa od 14 obr / min do 26 obr / min ( w zależności od typu silnika )
– temperatura pracy Od -10°C do + 40°C
Kolor konstrukcji RAL, FSM
Model tkaniny Wg aktualnego cennika
Zastosowanie Zewnętrzne

DEKLAROWANE WŁAŚCIWOŚCI UŻYTKOWE (ZEWNĘTRZNE)
Deklaracja Właściwości Użytkowych 47 / R / 2017
Odporność na obciążenie wiatrem 3 klasa (132Pa)
Całkowity współczynnik przenikania energii słonecznej gtot 0,01 – 0,90*


Refleksol 125 - Dane Techniczne - Refleksol 125 Selt, komponenty refleksola, belka dolna, pokrywa boczna, prowadnice linkowe, Refleksol 125 kaseta przekrój, belka dolna, prowadnica linka stalowa, Refleksol 125 maksymalne ściśnięcie sprężyny refleksola, Refleksol 125 wsporniki sprężyny, wspornik podwójny