Masz pytania? Potrzebujesz pomocy? Zadzwoń +48 518 075 074

Menu

Refleksol 85 – napęd łańcuszkowy – Pomiar

Wymiarowanie refleksola 85SA:

S=Szerokość refleksola do 220cm
H=Wysokość systemu do 250cm


Pomiar refleksola z prowadnicami linkowymi

1. Szerokość S – jest to szerokość całkowita łącznie z uchwytami

2. Wysokość H – jest to wysokość całkowita
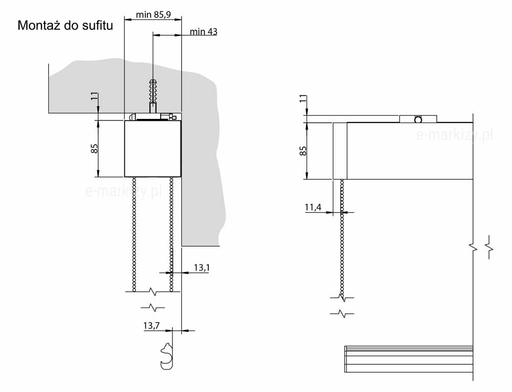
Wymiary kasety: szer. 85mm, wys. 96mm


Wymiarowanie refleksola 85MA:

S=Szerokość refleksola do 250cm
H=Wysokość systemu do 300cm


Pomiar refleksola z prowadnicami linkowymi

1. Szerokość S – jest to szerokość całkowita łącznie z uchwytami

2. Wysokość H – jest to wysokość całkowita
Wymiary kasety: szer. 85mm, wys. 96mm


Refleksol 85 – Dane Techniczne

Refleksol 85 – Komponenty

– kaseta refleksola
– klip montażowy
– łańcuszek
– belka dolna


Refleksol 85 Manual – Relfeksol 85 Semi Automat – Różnica

System Refleksol 85SA posiada wbudowany mechanizm sprężynowy zwijający tkaninę oraz funkcję soft-stop pozwalającą na powolne zatrzymanie w pozycji krańcowej górnej.
Mechanizm sprężynowy pozwala na sterowanie łańcuszkiem bądź belką dolną.
System Refleksol 85MA może być sterowany jedynie łańcuszkiem.


Przekroje

– uchwyt ścienno-sufitowy
– przekrój kasety
– rura nawojowa
– belka dolna



Refleksol 85MA Selt

Zastosowanie:
Ochrona przeciwsłoneczna i zacienianie od wewnątrz pionowych otworów okiennych , przeszkleń, wydzielenia przestrzeni.
Charakterystyka wyrobu:
– Konstrukcja systemu wykonana jest z ekstrudowanego aluminium, co zapewnia trwałość i wytrzymałość refleksola.
– System nie wymaga zasilania (napęd ręczny)
– Kaseta kwadratowa przystosowana zarówno do montażu sufitowego jak i ściennego
– Uniwersalne uchwyty mocujące ścienno-sufitowe umożliwiają szybki i prosty montaż systemu
– Zapobiega nagrzewaniu się pomieszczeń, co w znacznym stopniu ogranicza konieczność wykorzystania urządzeń
klimatyzacyjnych, ogranicza dostęp światła słonecznego i zwiększa udział światła rozproszonego w pomieszczeniu

– Struktura stosowanych tkanin HIGH-T-TEX skutecznie ogranicza powstawanie kontrastów tworzących się podczas wpadania
promieni słonecznych do pomieszczenia
– Ogranicza przenikanie hałasu do wnętrza budynku
– Sterowanie odbywa za pomocą łańcuszka pracującego w pętli
– Wyrób zawiera element zabezpieczający łańcuszek przed utworzeniem wolnowiszącej pętli
– Łańcuszek zawiera element złączny pozwalający na skrócenie jego długości

PARAMETRY TECHNICZNE REFLEKSOL R85MA
Szerokość maksymalna: 2,5 m
Wysokość maksymalna: 3 m
Średnica rury nawojowej: 38 mm
Belka dolna: Owalna 17 mm x40 mm

Napęd ręczny:Łańcuszek w pętli o długościach: 240 lub 360 cm (lub 350 cm dla koloru antracyt)
Kolor łańcuszka: Biały, Szary, Ciemny antracyt
Zabezpieczenie pętli łańcuszka: Bezbarwny uchwyt zabezpieczający
Kolor konstrukcji RAL, FSM
Model tkaniny Wg aktualnego cennika
Zastosowanie Wewnętrzne


Refleksol 85SA Selt

Zastosowanie:
Ochrona przeciwsłoneczna i zacienianie od wewnątrz pionowych otworów okiennych , przeszkleń, wydzielenia przestrzeni.
Charakterystyka wyrobu:
– Konstrukcja systemu wykonana jest z ekstrudowanego aluminium, co zapewnia trwałość i wytrzymałość refleksola.
– System nie wymaga zasilania (napęd ręczny)
– Kaseta kwadratowa przystosowana zarówno do montażu sufitowego jak i ściennego
– Wyposażona w mechanizm sprężynowy z automatycznym zwijaniem i funkcją soft-stop (powolne zatrzymanie w górnej pozycji
krańcowej)
– Uniwersalne uchwyty mocujące ścienno-sufitowe umożliwiają szybki i prosty montaż systemu

– Zapobiega nagrzewaniu się pomieszczeń, co w znacznym stopniu ogranicza konieczność wykorzystania urządzeń
klimatyzacyjnych, ogranicza dostęp światła słonecznego i zwiększa udział światła rozproszonego w pomieszczeniu
– Struktura stosowanych tkanin HIGH-T-TEX skutecznie ogranicza powstawanie kontrastów tworzących się podczas wpadania
promieni słonecznych do pomieszczenia
– Ogranicza przenikanie hałasu do wnętrza budynku
– Sterowanie odbywa za pomocą łańcuszka pracującego w pętli lub belki dolnej
– Wyrób zawiera element zabezpieczający łańcuszek przed utworzeniem wolnowiszącej pętli
– Łańcuszek zawiera element złączny pozwalający na skrócenie jego długości

PARAMETRY TECHNICZNE REFLEKSOL R85SA
Szerokość maksymalna: 2,2 m
Wysokość maksymalna: 2,5 m
Średnica rury nawojowej: 38 mm
Belka dolna: Owalna 17 mm x40 mm

Napęd ręczny:
Łańcuszek w pętli o długościach: 240 lub 360 cm (lub 350 cm dla koloru antracyt)
Dodatkowo mechanizm sprężynowy z automatycznym zwijaniem i funkcją soft-stop
Kolor łańcuszka: Biały, Szary, Ciemny antracyt
Zabezpieczenie pętli łańcuszka: Bezbarwny uchwyt zabezpieczający
Kolor konstrukcji RAL, FSM
Model tkaniny Wg aktualnego cennika
Zastosowanie Wewnętrzne


Refleksol 85 - napęd łańcuszkowy - Dane Techniczne - Refleksol 85 Manual, komponenty refleksola, klip montażowy, kaseta, belka dolna, łańcuszek, Refleksol 85 Manual, kaseta refleksola, uchwyt sufitowo-ścienny, belka dolna, rura nawojowa, przekrój kasety refleksola, Refleksol 85 Ma montaż do ściany, mocowanie refleksola ścienne, Refleksol 85 Sa montaż do ściany, mocowanie refleksola ścienne, Refleksol 85 Ma montaż do sufitu, mocowanie refleksola sufitowe, Refleksol 85 Sa montaż do sufitu, mocowanie refleksola sufitowe, Refleksol 85-ma strona sterowania, napęd do refleksoli, elektryczne refleksole