Masz pytania? Potrzebujesz pomocy? Zadzwoń +48 518 075 074

Menu

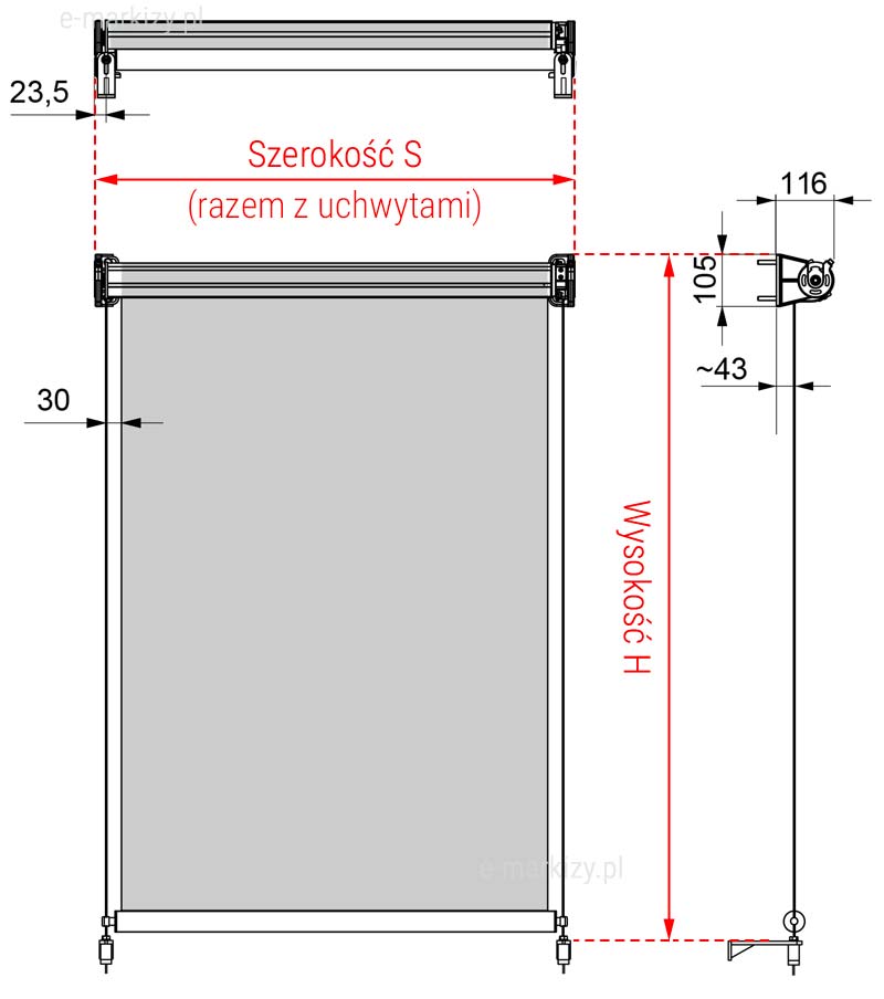
Refleksol XXL – Pomiar – Jak mierzyć?

Wymiarowanie refleksola XXL zewnętrznego:

S=Szerokość refleksola do 300cm
H=Wysokość systemu do 300cm

Wymiarowanie refleksola XXL wewnętrznego:

S=Szerokość refleksola do 450cm
H=Wysokość systemu do 500cm

Pomiar refleksola XXL z prowadnicami linkowymi

Szerokość S – jest to szerokość całkowita łącznie z uchwytami – do 400cm
Wysokość H – jest to wysokość całkowita – do 400cm


Refleksol XXL – Dane Techniczne

Zobacz sposoby montażu refleksola

Wyceń refleksol XXL

Refleksol XXL– Komponenty

– rura nawojowa z tkaniną
– uchwyt rury nawojowej
– belka dolna
– napinacz linki
– prowadnica linkowa

Wersje refleksola z prowadnicami linkowymi posiadają różne komponenty w zależności do sposobu montażu (więcej informacji w karcie katalogowej produktu). Konstrukcja systemu oraz kaseta wykonane są z ekstrudowanego aluminium. Konstrukcja wyrobu i napędu pozwala na bezpieczne zatrzymanie kurtyny na każdej wysokości w obszarze pracy góra-dół i pozostawanie tam w stanie zawieszenia. Napęd refleksola elektryczny lub ręczny-korbowy. Silniki posiadają stopień ochrony obudowy IP 44.


Prowadnica linkowa
Belka dolna
Profil wzmacniający
Rura nawojowa ocynkowana


Montaż refleksola

Przy montażu do sufitu jest możliwość stosowania linki. Opcję wolnowiszącą stosować tylko wewnątrz budynku.

Uchwyt ścienno-sufitowy


Refleksol z prowadnicami linkowymi lub wolno wiszący

Refleksol XXL może zostać wyposażony w stalowe linki utrzymujące dodatkowo sztywność tkaniny lub być zamontowany jako osłona wolnowisząca, w takim przypadku tkanina napinana jest grawitacyjnie przez belke dolną.


Montaż rolety do ściany

Uchwyt ścienno-sufitowy przymocowany jest do ściany, wnęki lub ramy okna, a napinacze prowadnic linkowych do ściany lub podłoża.


Montaż rolety do sufitu

Uchwyt ścienno-sufitowy przymocowany jest do sufitu lub wnęki, a napinacze prowadnic linkowych do ściany lub podłoża.


Montaż refleksola XXL z prowadnicami linkowymi


Kątowniki mocujące linkę

Mocowanie prowadnicy linkowej odbywa się za pomocą kątownika linki

Uchwyty linki występują w różnych długościach i są regulowane w zakresach:
* L= regulacja od 15-36mm (Standardowa długość)
* L= regulacja od 29-50mm (Opcja-rzadziej stosowana długość)
* L= regulacja od 55-76mm (Opcja-rzadziej stosowana długość)


Podłogowy napinacz linki


Sterowanie roletami screen

Refleksolami sterujemy ręcznie lub elektrycznie. Napęd korbowy sterowany jest z zewnątrz lub wewnątrz pomieszczenia. W przypadku napędu elektrycznego, przewód wyprowadzony jest na długość ok. 2mb i umiejscowiony mniej więcej na środku systemu. Można go podłączyć dowolnie z prawej lub z lewej strony rolety.

Zobacz informacje o sterowaniu elektrycznym


Refleksol XXL Selt

Zastosowanie:
Ochrona przeciwsłoneczna i zacienianie pionowych otworów okiennych , przeszkleń, wydzielenia przestrzeni o znacznych rozmiarach. Przeznaczona zarówno na zewnątrz jak i wewnątrz pomieszczeń
Charakterystyka wyrobu:
– Konstrukcja systemu wykonana jest z ekstrudowanego aluminium, co zapewnia trwałość i wytrzymałość refleksola.
– Napęd elektryczny lub ręczny (korba)
– Wyrób bezkasetowy z prowadnicami linkowymi (na zewnątrz) lub wolnowiszący (do wewnątrz)
– Aluminiowe uchwyty mocujące ścienno-sufitowe umożliwiają szybki i prosty montaż systemu
– Prosta konstrukcja.
– Prowadnice linkowe – nierdzewne

– Zapobiega nagrzewaniu się pomieszczeń co w znacznym stopniu ogranicza konieczność wykorzystania urządzeń
klimatyzacyjnych, ogranicza dostęp światła słonecznego i zwiększa udział światła rozproszonego w pomieszczeniu
– Struktura stosowanych tkanin HIGH-T-TEX skutecznie ogranicza powstawanie kontrastów tworzących się podczas wpadania
promieni słonecznych do pomieszczenia
– Ogranicza przenikanie hałasu do wnętrza budynku
– Trzy odmiany belki dolnej FG42, fi 35 (do wewnątrz) lub fi42 (do zewnątrz).

PARAMETRY TECHNICZNE REFLEKSOL RXXL
Szerokość maksymalna: 3 m (zewnątrz), 4,5 m (wewnątrz)
Wysokość maksymalna: 3 m (zewnątrz), 5 m (wewnątrz)
Maksymalne pole powierzchni tkaniny: 9 m2, (zewnątrz), 22,5 m2 (wewnątrz)
Średnica rury nawojowej: 70/78mm
Belka dolna: Prostokątna 12×42 mm lub okrągła średnicy 35 mm lub 42 mm (do zewnątrz)

Napęd elektryczny, silnik o parametrach:
– napięcie zasilania
230 V ~ 50 Hz – moc
od 120 W do 145 W ( w zależności od typu silnika )
– pobór prądu od 0,5 A do 0,64 A ( w zależności od typu silnika )
– stopień ochrony IP 44
– czas pracy ciągłej 4 min
– moment obrotowy 10 Nm
– prędkość obrotowa od 14 obr / min do 26 obr / min ( w zależności od typu silnika )
– temperatura pracy Od -10°C do + 40°C

Napęd ręczny: Korba:
Składana długości 180 cm z przegubem Cardana i przepustem ściennym, anodowane aluminium
Kolor konstrukcji RAL, FSM
Model tkaniny Wg aktualnego cennika
Zastosowanie Zewnętrzne / Wewnętrzne
DEKLAROWANE WŁAŚCIWOŚCI UŻYTKOWE (ZEWNĘTRZNE) – Prowadnice linkowe
Deklaracja Właściwości Użytkowych 60 / R / 2017
Odporność na obciążenie wiatrem 1 klasa (48Pa)
Całkowity współczynnik przenikania energii słonecznej gtot 0,01 – 0,90*


Refleksol XXL - Dane TechniczneRefleksol XXL - Dane Techniczne - Refleksol XXL Uchwyt ścienno-sufitowy, montaż refleksola do ściany, montaż refleksola do suftu, Refleksol XXL Komponenty refleksola, uchwyt rury nawojowej, napinacz linki, prowadnica linkowa, Refleksol XXL Belka nawojowa, rury nawojowe refleksola, prowadnica linkoweRefleksol XXL Selt wymiarowanie, pomiar refleksola, refleksole wymiary