Refleksole Ziiip, występują w kilku wariantach. Oprócz wersji podstawowej: refleksol ziiip 120 oraz refleksol ziiip 95, wyróżniamy również modele przeznaczone do zabudowy tj. refleksol ziiip 120 podtynkowy oraz refleksol ziiip 120 Box. Dzięki zastosowaniu komponentów modelu ziiip 120 Large, szerokość refleksola nawet do 700cm.
Wymiarowanie refleksola ziiip 120 oraz ziip 120 w wersji podtynkowej
S=Szerokość refleksola do 700cm
H=Wysokość systemu do 400cm
Wymiary kasety: szer. 126mm, wys. 126mm
Wymiary kasety podtynkowej: szer. 143mm, wys. 126mm


Pomiar refleksola 120 ziiip z prowadnicami listwowymi
Szerokość S – jest to szerokość całkowita łącznie z uchwytami – do 700cm
Wysokość H – jest to wysokość całkowita – do 400cm
Całkowite wymiary kasety: szer. 132mm, wys. 126mm


2. Refleksol Ziiip 120 – Dane Techniczne

Wersje refleksola zależnie od sposobu montażu posiadają różne komponenty (więcej informacji w karcie katalogowej produktu). Konstrukcja systemu oraz kaseta wykonane są z ekstrudowanego aluminium. Konstrukcja wyrobu i napędu pozwala na bezpieczne zatrzymanie kurtyny na każdej wysokości w obszarze pracy góra-dół i pozostawanie tam w stanie zawieszenia. Napęd refleksola elektryczny lub ręczny-korbowy. Silniki posiadają stopień ochrony obudowy IP 44.

Komponenty systemu Ziiip 120
- Pokrywa boczna (lewa)
- Łożysko
- Kalota
- Kaseta – część stała
- Rura nawojowa
- Kaseta – rewizja
- Silnik
- Adapter silnika
- Pokrywa boczna (prawa)
- Uchwyt prowadnicy
- Prowadnica – część stała
- Profil prowadzący ZIIIP
- Prowadnica – rewizja
- Zaślepka prowadnicy
- Belka dolna
- Zaślepka belki dolnej
Rodzaje i wymiary kaset

A. Kaseta z opcjonalnym uchwytem


B. Kaseta gładka – polecana do pergol

C. Kaseta do zabudowy
Rodzaje belek obciążeniowych
W zależności od wymiarów rolety, stosuje się różne belki dolne, które obciążają tkaninę. Stosujemy belkę „wąską” oraz „szeroką„. Jej rodzaj dobierany jest automatycznie na podstawie gabarytów rolety. Należy zwrócić uwagę, że zamawiając kilka rolet o różnych wymiarach, belki obciążeniowe mogą być różne. Ważne jest również miejsce montażu refleksola. Jeśli jego montaż będzie odbywał się do powierzchni płaskiej bez uchwytów (np. do ściany, ramy itp.), to belka szeroka będzie wychodziła poza obrys prowadnic, co uniemożliwi montaż. W tym przypadku konieczne jest zastosowanie belki wąskiej. Jeśli nie jesteś pewny, które belka zostanie zastosowana do twoich wymiarów rolety lub chcesz wykonać roletę z niestandardową belką, skontaktuj się z nami.


a) Belka dolna wąska standard – FG51-02
stosowana jest zawsze od szerokości 1600mm
b) Belka dolna Poszerzona FG51-03
stosowana jest tylko do szerokości rolety 1599mm


- (pola zielone) do szer. 1599mm zalecane użycie wersji z poszerzoną belką w cenie, natomiast możliwe jest użycie belki wąskiej standardowej na wyraźne życzenie klienta przy składaniu zamówienia
- (pola pomarańczowe) wersja tylko z poszerzoną belką
Rodzaje prowadnic
A. Prowadnica gładka, bez uchwytu

Prowadnica gładka mocowana jest bezpośrednio do powierzchni bocznej lub czołowej bez wykorzystania uchwytów.
Opcjonalnie możemy zastosować inną prowadnicę z wykorzystaniem uchwytów (punkt bbbbb)
W wersji do zabudowy, występuje wyłącznie prowadnica gładka.


Sposoby montażu prowadnicy gładkiej
1. Mocowanie bezpośrednie do powierzchni czołowej
(np. ściany, ramy okna, profilu pergoli)
2. Mocowanie bezpośrednie do powierzchni bocznej
(np. wnęki okna, profilu pergoli, podpory pergoli)


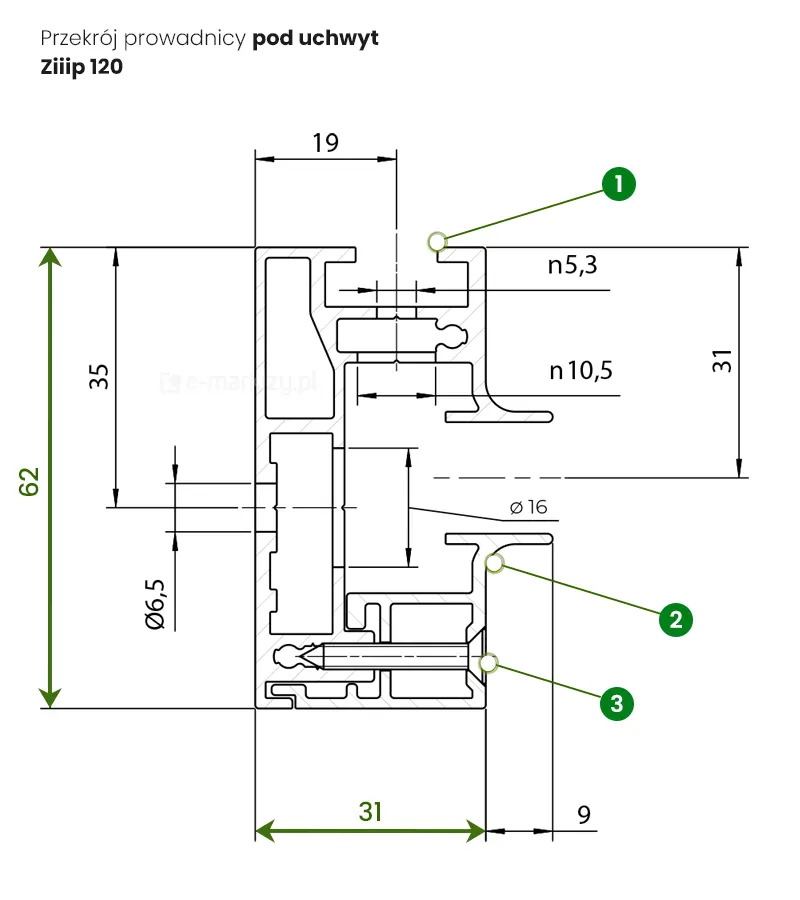
B. Prowadnica pod uchwyt




Prowadnicę pod uchwyt, stosujemy wykorzystując jeden z dostępnych uchwytów. Wsuwa się ją
w profil stały (1)
Elementy prowadnicy
- Profil stały
- Profil rewizyjny prowadnicy
- Wkręt mocujący ST3,5×19-A2
* średnice otworów podano jako max. dopuszczalne.
C. Prowadnica z poszerzona belką tkaniny

Widok prowadnicy z zastosowaniem poszerzonej belki obciążeniowej 58mm.
Profil belki nie wychodzi poza światło prowadnicy przy założeniu idealnego położenia.
Uwaga ! Przy montażu bezpośrednio na ścianę, zaleca się wykorzystanie przynajmniej jednego dystansu.
Rodzaje uchwytów do prowadnic
a) uchwyt samonośny regulowany TYP 38-45

b) uchwyt samonośny regulowany TYP 53-59

c) uchwyt samonośny regulowany modułowo TYP 42-47
d) uchwyt samonośny stały – verandowy TYP 56-61 (opcjonalny)

Sterowanie roletami screen
Refleksol Ziiip 120 może być sterowany silnikiem elektrycznym. Przewód wyprowadzony jest na długość ok. 2mb z otworu umieszczonego z boku lub od tyłu kasety refleksola.
Refleksol Ziiip 120 Selt
Zastosowanie:
Ochrona przeciwsłoneczna i zacienianie pionowych otworów okiennych , przeszkleń, wydzielenia przestrzeni.
Charakterystyka wyrobu:
– Konstrukcja systemu wykonana jest z ekstrudowanego aluminium, co zapewnia trwałość i wytrzymałość refleksola.
– Ograniczają dostęp światła słonecznego do pomieszczenia
– Zwiększają udział światła rozproszonego w pomieszczeniu
– Aluminiowe prowadnice ekstrudowane z rewizją
– Wersja samonośna na uchwytach samonośnych dla dwóch rodzajów dystansu
– Możliwość montażu bezpośredniego prowadnic do ściany – czołowe lub boczne
– Możliwość montażu modułowego prowadnic na wspólnych uchwytach samonośnych
– Tkanina posiada boczne zamki co zapewnia wysoką odporność wiatrową
– Chronią pomieszczenie przed nagrzewaniem przez co przyczyniają się do poprawy komfortu termicznego w pomieszczeniach
– Pozwalają na ograniczenie kosztów związanych z klimatyzacją pomieszczeń
– Ograniczają przenikanie hałasu do wnętrza budynku
– Nie wydzielają toksycznych substancji w trakcie eksploatacji
– Emisja hałasu zasłon zewnętrznych z napędem nie jest uważana za istotne zagrożenie dla zdrowia i bezpieczeństwa.
– Silniki posiadają stopień ochrony obudowy IP 44
– Konstrukcja wyrobu i napędu pozwala na bezpieczne zatrzymanie kurtyny na każdej wysokości w obszarze pracy góra-dół i pozostawanie tam w stanie zawieszenia
– Ruch w górę i dół odbywa się z użyciem mechanizmu sterującego, elektrycznego z układem napędowym połączonym z systemem sterującym
– Struktura stosowanych tkanin HIGH-T-TEX skutecznie ogranicza powstawanie kontrastów tworzących się podczas wpadania promieni słonecznych do pomieszczenia
– Ogranicza przenikanie hałasu do wnętrza budynku
– Konstrukcja lakierowana proszkowo
– Napęd elektryczny
– kolorystyka: RAL, FSM
PARAMETRY TECHNICZNE REFLEKSOL R120 Ziiip
Szerokość maksymalna: 4 m (linkowa)
Wysokość maksymalna: 4 m
Maksymalne pole powierzchni tkaniny: 16 m2
Średnica rury nawojowej: 78mm
Prowadnice: Na uchwytach samonośnych: typ A (refleksolowe) o wysięgu 39-45 mm
lub typ B (żaluzjowe) o wysięgu 52-58 mm
Belka dolna: FG51-02 (opcjonalnie FG51)
Napęd elektryczny, silnik o parametrach:
– napięcie zasilania
230 V ~ 50 Hz – moc
od 120 W do 145 W ( w zależności od typu silnika )
– pobór prądu od 0,5 A do 0,64 A ( w zależności od typu silnika )
– stopień ochrony IP 44
– czas pracy ciągłej 4 min
– moment obrotowy 10 Nm
– prędkość obrotowa od 14 obr / min do 26 obr / min ( w zależności od typu silnika )
– temperatura pracy Od -10°C do + 40°C
Kolor konstrukcji RAL, FSM
Model tkaniny Wg aktualnego cennika
Zastosowanie Zewnętrzne
DEKLAROWANE WŁAŚCIWOŚCI UŻYTKOWE (ZEWNĘTRZNE) – Prowadnice listwowe
Deklaracja Właściwości Użytkowych 52 / RZ / 2018
Odporność na obciążenie wiatrem:
z belką dolną FG51: Klasa 6 (480 Pa)
z belką dolną FG51-02: Klasa 4 (204 Pa)
Całkowity współczynnik przenikania energii słonecznej gtot 0,01 – 0,90*