Masz pytania? Potrzebujesz pomocy? Zadzwoń +48 518 075 074

Menu

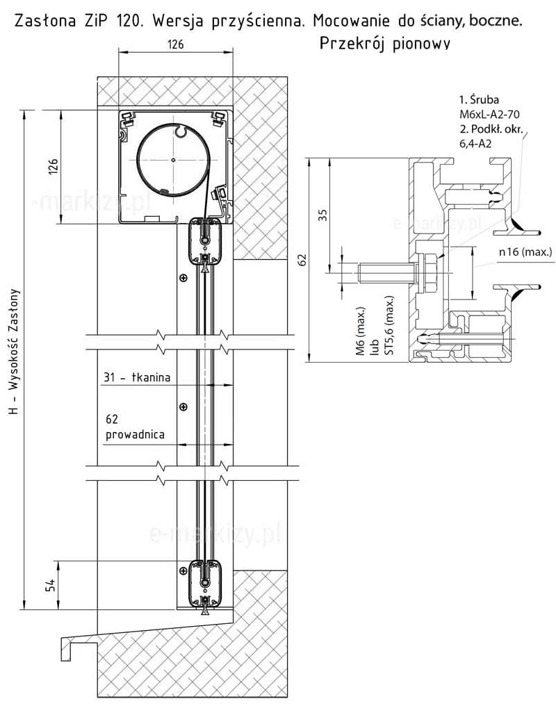
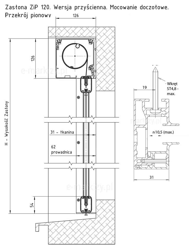
Refleksol Ziiip 120- Sposoby montażu

1. Prowadnice aluminiowe montowane do powierzchni pionowej (najczęsciej do ramy okna)
2. Prowadnice aluminiowe montowane do boku wnęki
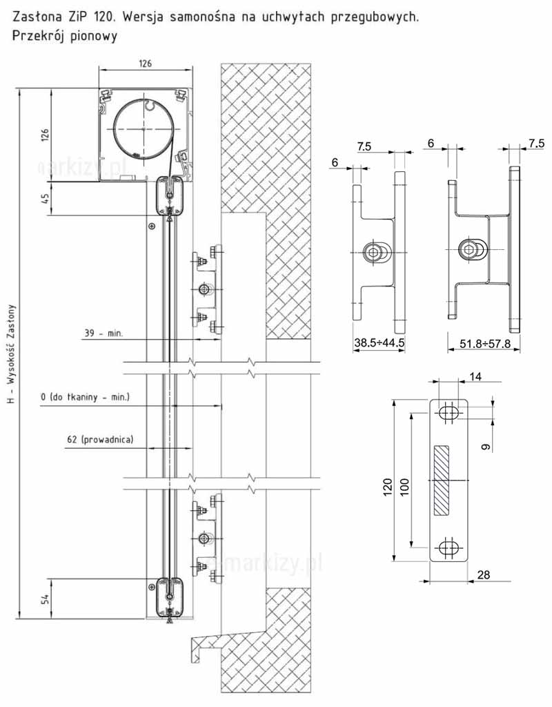
3. Prowadnice aluminiowe montowane do okna lub ściany na uchwytach regulowanych

* kaseta jest samonośna – mocujemy ją tylko do prowadnic. W razie potrzeby można ją przykręcić do dowolnej powierzchni.

Refleksol podtynkowy montowany jest wyłącznie bezpośrednio na prowadnicach bez użycia uchwytów



Refleksol 120 Ziiip Selt

| Kaseta samonośna
| Prowadnice na uchwytach
| Montaż doczołowy (np. do ściany lub do ramy okna)


Instrukcja montażu – film producenta wersja PL

Instrukcja montażu do wnęki – film producenta wersja PL


Refleksol Ziiip 120 - Sposoby montażu, Refleksol Ziiip 120 - Rodzaje Prowadnic, Ziiip 120 montaż samonośny wymiar uchwytu prowadnicy refleksola, Refleksol zip 120 mocowanie na uchwytach przegubowych (uchwyty samonośne), Refleksol zip 120 mocowanie bezpośrednie czołowe, Refleksol zip 120 mocowanie bezpośrednie boczne