Masz pytania? Potrzebujesz pomocy? Zadzwoń +48 518 075 074

Menu

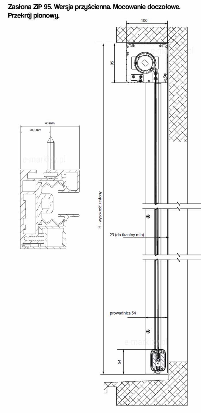
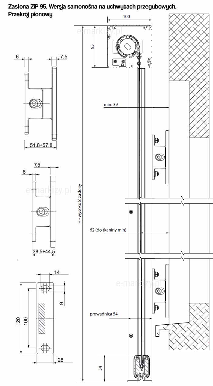
Refleksol Ziiip 95 – Sposoby montażu

1. Prowadnice aluminiowe montowane do powierzchni pionowej (najczęsciej do ramy okna)
2. Prowadnice aluminiowe montowane do boku wnęki
3. Prowadnice aluminiowe montowane do okna lub ściany na uchwytach regulowanych

* kaseta jest samonośna – mocujemy ją tylko do prowadnic. W razie potrzeby można ją przykręcić do dowolnej powierzchni.




Refleksol 95 Ziiip Selt

| Kaseta samonośna
| Prowadnice na uchwytach
| Montaż doczołowy (np. do ściany lub do ramy okna)