Masz pytania? Potrzebujesz pomocy? Zadzwoń +48 518 075 074

Menu

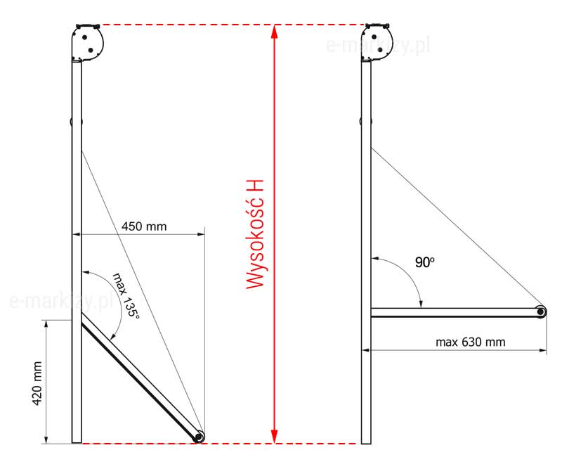
Markizoroleta 103 – Pomiar – Jak mierzyć?

Wymiarowanie Markizorolety 103:

S=Szerokość markizorolety do 350cm
H=Wysokość systemu do 400cm
W=Wysięg ramienia markizolety 63cm


Pomiar refleksola markizowego 103

Szerokość S – jest to zewnętrzna skrajna szerokość kasety i prowadnic po obrysie. Opcjonalnie, w razie potrzeby możemy podać również szerokość między stopkami prowadnic (należy to wyraźnie zaznaczyć podczas zamówienia)
Wysokość H – jest to zewnętrzna skrajna wysokość całej markizolety – czyli prowadnic łącznie z kasetą (wymiary kaset i inne dane można znaleźć w zakładce dane techniczne)
Ramię W – Specjalne ramię tworzące kąt pochylenia 90°-135°


Markizoroleta 103 – Dane Techniczne

Zobacz sposoby montażu markizolety

Wyceń markizoletę 103

Markizoroleta 103 Selt – Komponenty

– klipy montażowe
– belka górna
– belka dolna
– ramię markizolety
– prowadnica listwowa


Przekroje

– Kaseta przekrój
– klip montażowy
– belka dolna
– prowadnica GC30
– prowadnica GC30F
– prowadnica GC30FD
– rura nawojowa ocynkowana


Markizoleta 103 – Kąt pochyłu regulowany

Max. wysięg ramienia: 63cm


Prowadnice aluminiowe – Montaż do okna lub ściany  – Prowadnice GC30F

Prowadnice aluminiowe montujemy na uchwytach mocujących (Na zamówienie można wyprodukować uchwyty w wymiarze od 57 do 180mm). Standardem są uchwyty najkrótsze tj. 57mm.


Prowadnice aluminiowe – Montaż do wnęki – Prowadnice GC30

Prowadnice aluminiowe montujemy bezpośrednio (bez uchwytów) do boku wnęki okna. W tym celu należy je nawiercić aby przymocować je do boku wnęki.


Uchwyt prowadnicy okrągłej

Uchwyt prowadnicy refleksola składa się z następujących elementów:
– sworzeń
– ekstruder
– stopka
Na zamówienie można wyprodukować uchwyty w dowolnym wymiarze od 57mm do 180mm


Szczegół elementu łączenia kasety z prowadnicą

Szczegół blokady ramienia stałego

Szczegół prowadzenia ramienia stałego w prowadnicy


Montaż grupowy prowadnic
Markizolety możemy mocować grupowo, wtedy stosujemy podwójną prowadnicę modułową GC30FD (obustronną – na zdjęciu po lewej).


Sterowanie roletami markizowymi

Markizoroletami sterujemy ręcznie lub elektrycznie. Napęd korbowy sterowany jest z zewnątrz lub wewnątrz pomieszczenia. W przypadku napędu elektrycznego, przewód wyprowadzony jest na długość ok. 2mb i umiejscowiony mniej więcej na środku systemu. Można go podłączyć dowolnie z prawej lub z lewej strony rolety.

Zobacz informacje o sterowaniu ręcznym Zobacz informacje o sterowaniu elektrycznym


Markizoroleta 103 Selt

Zastosowanie:
System Markizoleta 103 łączy funkcje rolety oraz markizy. Przeznaczony do zewnętrznego zaciemnienia otworów okiennych, fasad i innych dużych przeszkleń
Charakterystyka wyrobu:
– Ograniczają dostęp światła słonecznego do pomieszczenia,
– Zwiększają udział światła rozproszonego w pomieszczeniu,
– Możliwość zabudowy kasety jako samonośnej,
– Kaseta do montażu wnękowego, ściennego lub fasadowego z ekstrudowanego aluminium chroniąca tkaninę,
– Specjalne stalowe ramię tworzące kąt pochylenia 90° – 135° ,
– Rewizja od czoła kasety,
– Możliwość montażu modułowego,
– Możliwość zastosowania zasłony z tkanin o różnym współczynniku przezierności optycznej,
– Chronią pomieszczenie przed nagrzewaniem przez co przyczyniają się do poprawy komfortu termicznego w pomieszczeniach,

– Pozwalają na ograniczenie kosztów związanych z klimatyzacją pomieszczeń,
– Ograniczają przenikanie hałasu do wnętrza budynku,
– Nie wydzielają toksycznych substancji w trakcie eksploatacji,
– Emisja hałasu przez wyrób z napędem elektromechanicznym (związany z ruchem roboczym elementów ruchomych, wytwarzany przez silnik elektryczny podczas pracy) nie jest uważana za znaczące zagrożenie i jest kwestią komfortu,
– Silniki posiadają stopień ochrony obudowy IP 44,
– Konstrukcja wyrobu i napędu pozwala na bezpieczne zatrzymanie zasłony na każdej wysokości w obszarze pracy góra-dół i pozostawanie tam w stanie zawieszenia,
– Ruch w górę i dół odbywa się za pomocą napędu elektrycznego, może być sterowany za pomocą przełącznika manualnego lub zdalnie,
– Struktura stosowanych tkanin HIGH-T-TEX skutecznie ogranicza powstawanie kontrastów tworzących się podczas wpadania promieni słonecznych do pomieszczenia,
– Konstrukcja lakierowana proszkowo,
– Kolorystyka: RAL, FSM.

PARAMETRY TECHNICZNE REFLEKSOL MR103
Szerokość maksymalna: 3,5 m
Wysokość maksymalna: 4 m
Wysięg ramion: 63 cm
Średnica rury nawojowej: 70/78mm
Prowadnice: GC30; GC30F; GC30FD(samonośny)
Belka dolna: φ42

Napęd elektryczny, silnik o parametrach:
– napięcie zasilania
230 V ~ 50 Hz – moc
od 120 W do 145 W ( w zależności od typu silnika )
– pobór prądu od 0,5 A do 0,64 A ( w zależności od typu silnika )
– stopień ochrony IP 44
– czas pracy ciągłej 4 min
– moment obrotowy 10 Nm
– prędkość obrotowa od 14 obr / min do 26 obr / min ( w zależności od typu silnika )
– temperatura pracy Od -10°C do + 40°C
Kolor konstrukcji RAL, FSM
Model tkaniny Wg aktualnego cennika
Zastosowanie Zewnętrzne
(do wnęki, na fasadzie budynku, montaż podtynkowy kasety)

DEKLAROWANE WŁAŚCIWOŚCI UŻYTKOWE
Deklaracja Właściwości Użytkowych 90 / MR / 2017
Odporność na obciążenie wiatrem 1 klasa (48Pa)
Całkowity współczynnik przenikania energii słonecznej gtot 0,01 – 0,90*


Markizoroleta 103 - Dane Techniczne - Markizoroleta 103 Komponenty, belka górna, klipy montażowe, belka dolna, ramię rolety, prowadnica listwowa, Markizoleta 103 wymiary boczne, jak mierzyć markizoletę, markizoleta kąt pochyłu, markizoroleta kąt pochyłu, Markizoleta 103 montaż wnękowy gc30, sklep e-Markizy, Markizoleta 103 montaż wnękowy gc30f, sklep z roletami, markizoleta dane techniczne, Markizoleta 103 Selt montaż modułowy sposób pomiaru przed zamówieniem, Markizoleta 103 szczegóły konstrukcji, markizoroleta dane techniczne, łączenie kasety z prowadnicą, ramię stałe, blokada ramienia stałego, Markizoroleta 103 przekroje, kaseta rolety, belka dolna, prowadnica, rura nawojowa ocynkowana,