Masz pytania? Potrzebujesz pomocy? Zadzwoń +48 518 075 074

Menu

Montaż Pergoli Square Przyściennej

Wyceń Pergolę – Kliknij Tutaj


Montaż Pergoli Square Przyściennej (wersja skrócona)


Montaż Pergoli Square Przyściennej (wersja pełna) – Instrukcja montażu pergoli Square

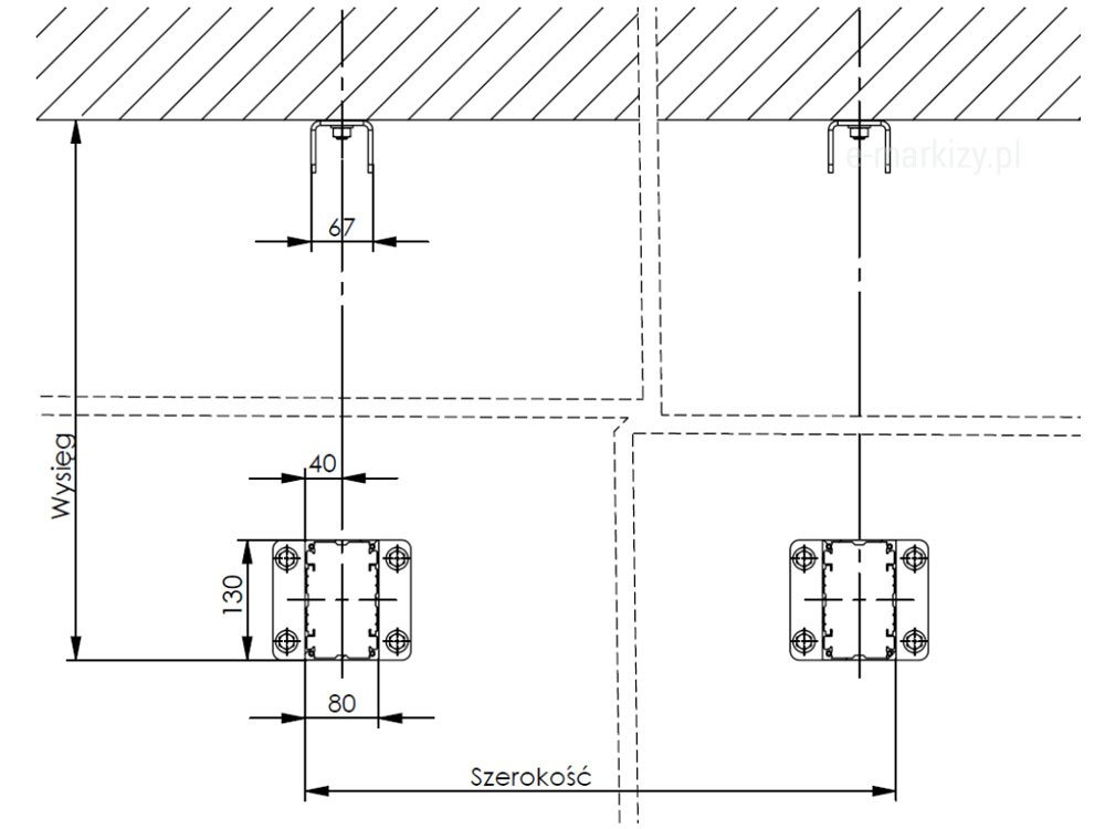
1. Dostarczona konstrukcja pergoli jest przygotowana na wymiar zgodnie z zleconym zamówieniem. Montaż pergoli na obiekcie musi zostać przeprowadzony zgodnie w wymiarami określonymi podczas pomiarów. Do każdego wyrobu zostaje dostarczona karta wymiarowa. Celem kary jest określenie położenia profilów konstrukcyjnych, których poprawny montaż zapewni uzyskanie właściwego kąta pochylenia pergoli i związany z tym poprawny odpływ wody deszczowej. Przedstawione wymiary ułatwią rozplanowanie położenia otworów wierconych w ścianie oraz w podłożu. Charakterystyczne wymiary pergoli:
– wysięg: odległość od ściany do zewnętrznej płaszczyzny słupów,
– szerokość: odległość między zewnętrznymi płaszczyznami szyn pergoli,
– wysokość przednia: wielkość światła między podłożem a spodem rynny,
– wysokość mocowania: odległość od podłoża do spodu wspornika ściennego mierzona przy ścianie.

Uwaga: Złożona przez producenta pergola nie ma zaprogramowanych położeń krańcowych silnika. Montażysta dopiero po zamocowaniu tkaniny i przykręceniu belki nieruchomej może zaprogramować położenia krańcowe według instrukcji wybranego napędu.

2. Montaż pergoli przyściennej wymaga przygotowania otworów w ścianie dla wspornika ściennego szyny oraz dla stóp słupów przednich. Wymiary wspornika i stopy przedstawiono na rysunkach.

3. W pierwszej kolejności należy zamocować wsporniki ścienne do ściany przez otwory podłużne (fasolkowe). Montując wspornik zwrócić uwagę by otwory łączące z szyną znajdowały się u dołu wspornika. Wsporniki powinny zostać zamocowane na określonej wysokości mocowania oraz rozstawione zgodnie z odległością wynikającą z szerokości pergoli.

4. Przykręcić wstępnie stopy słupów do podłoża. Na tym etapie nie należy ich całkowicie przykręcać – pozostawi to możliwość regulacji ostatecznego wymiaru konstrukcji. Podczas montażu ustawić słupy w takiej pozycji by blachy łącznika z rynną były skierowane do wewnątrz oraz kanał odpływu od frontu pergoli. Nominalne położenie słupów zależy od wysięgu oraz szerokości pergoli.

5. Na stojące słupy nałożyć rynnę. Rynna zostanie połączona przy pomocy śrub stożkowych oraz nakrętek płaskich M10. Nakrętki płaskie M10 należy wprowadzić w dedykowane kanały rynny (po 2 nakrętki na słup).

6. Przed przystąpieniem do montażu szyny należy zweryfikować czy wózki napinające (tj. wózki połączone na stałe z pasem) są zsynchronizowane na wszystkich szynach. Producent dostarcza szyny w stanie zsynchronizowanym z napiętym pasem. W celu sprawdzenia tego stanu należy przystawić szyny to siebie i przesunąć wózki na identyczną pozycję wzdłuż szyny (wymiar A=B), wtedy przez głowice napędowe obu szyn możliwe będzie jednoczesne przełożenie trzpienia kwadratowego. Przekładając trzpień kwadratowy przez koła napędowa w głowicy zwrócić uwagę czy znacznik trójkątny na obu kołach znajduje się w tym samym położeniu kątowym. W przypadku gdyby wózki nie były zsynchronizowane należy:
– pozostawić trzpień kwadratowy przełożony przez obie głowice,
– zdjąć zaślepkę szyn,
– poluzować pas zębaty przez odkręcenie śruby regulacji pasa w jednej z szyn,
– zrównać położenie wózków napinających,
– napiąć pas,
– sprawdzić ponownie wzajemne położenie wózków napinających.

7. Połączyć szyny ze wspornikami ściennymi oraz zawiasami zamocowanymi na rynnie. W systemie występują prawe, lewe i środkowe szyny, które różnią się położeniem uszczelek bocznych. Zwrócić uwagę podczas montażu by uszczelki skierowane były do wewnątrz pergoli.

8. Wprowadzić w otwory odpływowe tulejki z kołnierzem oraz uszczelnić je sylikonem.

9. Do rynny przykręcić zaślepki. Połączenie rynna-zaślepka uszczelnić od wewnątrz przy pomocy sylikonu.
Uwaga: w przypadku pergoli z roletą ZIP pod rynną przeprowadzi montaż zaślepki dopiero po zamocowaniu rolety.

10. Zamocować słupy poprzeczne: belkę silnika oraz podporę daszka.

Słupy poprzeczny zamocować w określonym położeniu wzdłuż szyny. Belka silnika dla każdej pergoli ma taką sama pozycję: wynosi ona 41 mm mierząc mm od czoła profilu szyny (baza pomiarowa A). Natomiast położenie podpory daszka zależeć będzie od wysięgu daszka. Standardowy daszek w systemie pergoli ma wysięg 80cm i dla takiego wysięgu położenie belki podpory daszka wyniesie 500 mm od czoła profilu szyny (baza pomiarowa A).

11. Belka silnika dostarczana jest z przykręconym boxem silnika (tj. przekładnia zbudowana z silnika rurowego schowana w kasecie). Istnieje możliwość osobnego montażu belki oraz późniejsze dokręcenie do niej boxu silnika. Box silnika dokręcany jest do nitonakrętek połączonych z belką.
W celu zapewniania prawidłowej pracy układu napędowego należy odpowiednio ustawić box silnika względem głowicy napędowej:
– strzałka na boku boxa powinna być skierowana w górę,
– wspornik boxu silnika powinien zawisnąć na rdzeniu śruby górnej (na powierzchni B) przez górny otwór fasolkowy,
– box silnika powinien przestawać minimalnie (około 1 mm) poza belkę silnika (baza pomiarowa C).
12. Po zamocowaniu belek poprzecznych można dokręcić śruby stóp z punktu 4 instrukcji.

3. Napęd dla dostarczonego produktu w zależności od zlecenia produkcyjnego, znajduje się z prawej lub lewej strony pergoli. Box silnika jest mocowany do belki silnikowej w odległości 700 mm od profilu szyny.

Do przekazywania momentu obrotowego z boxu silnika wykorzystuje się stalowe rury nawojowe.

Uwaga: Przed montażem rur upewnić się, że wózki napinające znajdują się w identycznym położeniu wzdłuż każdej z szyn!

Trzpień przesuwny wsunąć w koła napędowe wewnątrz głowicy – trzpień powinien przechodzić przez całe koło napędowe. Ustawić rury tak by czasza rury znajdowała się w odległości około 35 mm od boku boxa silnika.

Uwaga: Wsuwając trzpień kwadratowy w koła napędowe należy ograniczyć obroty rurą do niez
Położenie rur napędowych ustalić poprzez dokręcenie śrub dociskowych.

14. Pakiet tkaniny z belkami wprowadzić w szyny pergoli. Łączenie pakietu z szyną odbywa się przez wprowadzanie wózków w otwór serwisowy w głowicy. Kolejno wprowadza się belki tkaninowe 1÷5 ( ich ilość zależy od wysięgu pergoli – w omawianym przykładzie znajduje się razem 7 belek w pakiecie) a na końcu belkę nieruchomą 6. Belka napinająca 7 jako jedyna nie ma przykręconego wózka, gdyż jest on na stałe połączony z pasem zębatym wewnątrz szyny.

Po wprowadzeniu wszystkich wózków należy połączyć belkę napinającą z wózkiem napinającym. Połączenie odbywa się poprzez przełożenie osi montażu belki przez otwór w tkaninie i profilu belki. Następnie na oś montażu, przez otwór w spodzie belki, należy nałożyć tuleje dociskową oraz nakręcić na gwint osi nakrętkę wieńcową M6. Po pewnym skręceniu belki z wózkiem napinającym należy wcisnąć w profil zaślepkę belki.

15. Belkę nieruchomą zablokować w odległości 150 mm od czoła profilu szyny (baza pomiarowa A). Blokada odbywa się poprzez skręcenie płyt dociskowych: zewnętrznej oraz wewnętrznej.

Uwaga: Złożona przez producenta pergola nie ma zaprogramowanych położeń krańcowych silnika. Montażysta dopiero po zamocowaniu tkaniny i przykręceniu belki nieruchomej może zaprogramować położenia krańcowe według instrukcji wybranego napędu.

16. Do głowic szyn przykręcić maskownice.

17. Układ napędowy zostanie schowany za pomocą zasłony z tkaniny. Zasłonka przymocowana jest do ściany (lub sufitu) za pomocą wieszaka. Ilość wieszaków zależna jest od szerokości pergoli. Zewnętrzne wieszaki przymocować do ściany pod głowicami.

Następnie wprowadzić zasłonę w dolny kanał belki nieruchomej oraz kanał w profilu przyściennym. Po wprowadzeniu tkaniny oba profile zaślepić stosownymi zaślepkami. Profil przyścienny zawiesić na wieszakach.

Montaż Daszka – Zobacz Stronę


Strona dotyczy pergoli tarasowej Square firmy Mol wykonywanej na wymiar zgodnie z informacjami podanymi podczas zamówienia w konfiguratorze produktu. Więcej informacji można znaleźć w konfiguratorze lub na pozostałych podstronach produktu.


Montaż Pergoli Square Przyściennej - Montaż pergoli tarasowej square, instrukcja montażu pergoli, jak montować pergole, Pergola square montaż daszka ochronnego, daszek systemowy pergoli instrukcja montażu, osłona tkaniny pergoli montaż, Pergola tarasowa square instrukcja montażu. montaż pergoli tarasowej, Pergola square stopa pergoli, dane techniczne pergoli, przekrój stopy, Pergola square wspornik ścienny szyn pergoli, dane techniczne pergoli, przekrój wspornika