Masz pytania? Potrzebujesz pomocy? Zadzwoń +48 518 075 074

Menu

Refleksol 103 – Pomiar – Jak mierzyć?

Wymiarowanie refleksola 103:

S=Szerokość refleksola do 450cm
H=Wysokość systemu do 400cm


Pomiar refleksola 103 z prowadnicami linkowymi

Szerokość S – jest to szerokość całkowita łącznie z uchwytami – do 350cm
Wysokość H – jest to wysokość całkowita – do 300cm


Pomiar refleksola 103 z prowadnicami listwowymi

Szerokość S – jest to szerokość całkowita łącznie z uchwytami – do 450cm
Wysokość H – jest to wysokość całkowita – do 400cm


Refleksol 103 – Dane Techniczne

Zobacz sposoby montażu refleksola

Wyceń refleksol 103

Refleksol 103 – Komponenty

– klip mocujący,
– kaseta refleksola,
– uchwyt prowadnicy,
– prowadnica listwowa,
– belka dolna,
– profil antywind (profil przeciwwietrzny)

Wersje refleksola z prowadnicami linkowymi i prowadnicami listwowymi posiadają różne komponenty (więcej informacji w karcie katalogowej produktu). Konstrukcja systemu oraz kaseta wykonane są z ekstrudowanego aluminium. Konstrukcja wyrobu i napędu pozwala na bezpieczne zatrzymanie kurtyny na każdej wysokości w obszarze pracy góra-dół i pozostawanie tam w stanie zawieszenia. Napęd refleksola elektryczny lub ręczny-korbowy. Silniki posiadają stopień ochrony obudowy IP 44.


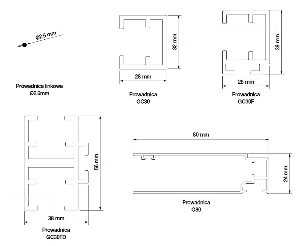
Refleksol 103 – Przekroje prowadnic

– Prowadnica linkowa 2,5mm
– Prowadnica GC30
– Prowadnica GC30F
– Prowadnica GC30FD
– Prowadnica G80


Refleksol 103 – Przekroje belek dolnych i profili

– Belka dolna FG42
– Belka dolna 42mm
– Profil przeciwwietrzny ANTYWIND
– Profil wzmacniający FG42R

  • w zależności od konfiguracji, może być stosowana belka płaska lub okrągła, dobierana względem rozmiaru. Poinformuj sprzedającego, jeśli chcesz konkretny rodzaj.

Refleksol 103 – Przekroje rury nawojowej

– Rura nawojowa 70mm
– Rura nawojowa 78mm

– Klip montażowy do kasety refleksola


Prowadnice linkowe montaż do sufitu

Stalowe nierdzewne linki trzymają tkaninę na całej jej długości. Uchwyty linek mogą być montowane do fasady (lub okna) lub ewentualnie do podłoża.


Kątowniki mocujące linkę

Mocowanie prowadnicy linkowej odbywa się za pomocą kątownika linki

Uchwyty linki występują w różnych długościach i są regulowane w zakresach:
*  L= regulacja od 15-36mm (Standardowa długość)
*  L= regulacja od 29-50mm (Opcja-rzadziej stosowana długość)
*  L= regulacja od 55-76mm (Opcja-rzadziej stosowana długość)


Podłogowy napinacz linki


Prowadnice linkowe – Montaż zewnętrzny przy użyciu kątownika Italia Selt


Kątownik Italia – wymiary


Uchwyty prowadnicy

Uchwyt prowadnicy refleksola składa się z następujących elementów:
– sworzeń
– ekstruder
– stopka
Na zamówienie można wyprodukować uchwyty w dowolnym wymiarze od 57mm do 180mm


Prowadnice aluminiowe w rolecie – Montaż do ściany na uchwytach

Montaż prowadnic GC30F na regulowanych uchwytach do powierzchni czołowej np. ramy/okna/ściany. Kaseta jest samonośna tzn. zamocowana jest tylko na prowadnicach. Mamy do wyboru 2 różne uchwyty o takiej samej funkcjonalności.



Prowadnice aluminiowe – Montaż do wnęki kaseta samonośna

Montaż prowadnic GC30F bezpośrednio do bocznej powierzchni wnęki (bez uchwytów prowadnic). Kaseta jest samonośna tzn. zamocowana jest tylko na prowadnicach. W tym wariancie, prowadnice należy przewiercić w kilku miejscach.


Prowadnice aluminiowe – Montaż do wnęki kaseta niesamonośna

Montaż prowadnic GC30 bezpośrednio do bocznej powierzchni wnęki (bez uchwytów prowadnic). Kaseta jest niesamonośna, tzn. przykręcana jest do ściany lub do sufitu. W tym wariancie, prowadnice należy przewiercić w kilku miejscach.


Montaż do ściany wewnętrznej

Montaż prowadnic G80 tzw. szerokich, bezpośrednio do czołowej powierzchni np ramy/okna/ściany (bez uchwytów prowadnic). Kaseta niesamonośna, przykręcana jest do ściany lub do sufitu.


Montaż do wnęki wewnętrznej

Montaż prowadnic G80 tzw. szerokich, bezpośrednio do bocznej powierzchni wnęki (bez uchwytów prowadnic). Kaseta niesamonośna, przykręcana jest do ściany lub do sufitu.


Montaż grupowy prowadnic

Refleksole możemy mocować grupowo, wtedy stosujemy podwójną prowadnicę modułową GC30FD (obustronną – na zdjęciu po lewej).


Montaż wewnętrzny bezpośrednio do ściany

Rysunek pokazuje Refleksol 103 przy montażu wewnętrznym do ściany. Sterowanie korbowe ręczne.

Montaż wewnętrzny do sufitu

Rysunek pokazuje Refleksol 103 przy montażu wewnętrznym do sufitu. Sterowanie korbowe ręczne.

Montaż zewnętrzny do sufitu – napęd ręczny z przelotką

Rysunek pokazuje Refleksol 103 przy montażu zewnętrznym do sufitu. Sterowanie korbowe ręczne z przepustem ściennym (przelotką) pozwala na sterowanie osłoną zewnętrzną z wewnątrz pomieszczenia.


Belka przeciwwietrzna – maksymalne wymiary

Profil przeciwwietrzny zabezpiecza roletę przed podmuchami wiatru i stabilizuje położenie tkaniny. W zależności od wysokości refleksola, można zastosować jeden lub dwa profile, tak, by tkanina pozostawała w ciągłym naprężeniu. Maksymalna szerokość profila ograniczona jest do 300cm (w zależności od modelu).

Sposób montażu podwójnej belki antywind

Belka przeciwwietrzna – montaż podwójnej belki polega na obróceniu suwaków względem siebie o 108 stopni w prowadnicy GC30 umożliwiając belce dolnej przeciwwietrznej na ominięcie blokady andywind.

1- suwak belki antywind górny
2- suwak belki antywind dolny
3- prowadnica
4- blokada antywind
5- belka przeciwwietrzna (antywind)


Sterowanie roletami screen

Refleksolami sterujemy ręcznie lub elektrycznie. Napęd korbowy sterowany jest z zewnątrz lub wewnątrz pomieszczenia. W przypadku napędu elektrycznego, przewód wyprowadzony jest na długość ok. 2mb i umiejscowiony mniej więcej na środku systemu. Można go podłączyć dowolnie z prawej lub z lewej strony rolety.

Zobacz informacje o sterowaniu ręcznym Zobacz informacje o sterowaniu elektrycznym


Refleksol 103 – Maksymalna wysokość dla danej tkaniny

Tkaniny używane w refleksolach posiadają ograniczenia wysokości w zależności od modelu osłony. Mniejsze kasety systemu nie są w stanie pomieścić zwiniętej tkaniny o pewnej grubości.


Refleksol 103 Selt

Zastosowanie:
Ochrona przeciwsłoneczna i zacienianie pionowych otworów okiennych , przeszkleń, wydzielenia przestrzeni od zewnątrz oraz od wewnątrz.
Charakterystyka wyrobu:
– Konstrukcja systemu wykonana jest z ekstrudowanego aluminium, co zapewnia trwałość i wytrzymałość refleksola.
– Ograniczają dostęp światła słonecznego do pomieszczenia
– Zwiększają udział światła rozproszonego w pomieszczeniu
– Kaseta z ekstrudowanego aluminium chroniąca tkaninę
– Aluminiowe prowadnice ekstrudowane lub nierdzewne prowadnice linkowe.
– Opcjonalnie profil antywind redukujący deformacje tkaniny pod naporem wiatru (przy szerokości wyrobu do 3 m).
– Chronią pomieszczenie przed nagrzewaniem przez co przyczyniają się do poprawy komfortu termicznego w pomieszczeniach
– Pozwalają na ograniczenie kosztów związanych z klimatyzacją pomieszczeń
– Ograniczają przenikanie hałasu do wnętrza budynku
– Nie wydzielają toksycznych substancji w trakcie eksploatacji

– Emisja hałasu zasłon zewnętrznych z napędem nie jest uważana za istotne zagrożenie dla zdrowia i bezpieczeństwa.
– Emisja hałasu przez zasłony wewnętrzne z napędem nie jest uważana za znaczące zagrożenie i jest kwestią komfortu. Poziom ciśnienia akustycznego jest niższy lub równy 70 dB(A)
– Silniki posiadają stopień ochrony obudowy IP 44
– Konstrukcja wyrobu i napędu pozwala na bezpieczne zatrzymanie kurtyny na każdej wysokości w obszarze pracy góra-dół i pozostawanie tam w stanie zawieszenia
– Struktura stosowanych tkanin HIGH-T-TEX skutecznie ogranicza powstawanie kontrastów tworzących się podczas wpadania promieni słonecznych do pomieszczenia
– Napęd elektryczny lub ręczny-korbowy
– Konstrukcja lakierowana proszkowo
– kolorystyka: RAL, FSM

PARAMETRY TECHNICZNE REFLEKSOL R103
Szerokość maksymalna: 4,5 m (listwowa), 3,5m (linkowa)
Wysokość maksymalna: 4 m (listwowa), 3 m (linkowa)
Maksymalne pole powierzchni tkaniny: 18 m2, (listwowa), 10,5 m2 (linkowa)
Średnica rury nawojowej: 70 lub 78mm
Prowadnice: Listwowe: G80 (wewnętrzna), GC30, GC30F, GC30FD, Linka fi 2,5 mm
Belka dolna: Fi 42 (zewn. i wewn.); FG42 z profilem wzmacniającym FG42R (wewn.)

Napęd elektryczny, silnik o parametrach:
– napięcie zasilania
230 V ~ 50 Hz – moc
od 120 W do 145 W ( w zależności od typu silnika )
– pobór prądu od 0,5 A do 0,64 A ( w zależności od typu silnika )
– stopień ochrony IP 44
– czas pracy ciągłej 4 min
– moment obrotowy 10 Nm
– prędkość obrotowa od 14 obr / min do 26 obr / min ( w zależności od typu silnika )
– temperatura pracy Od -10°C do + 40°C
Napęd ręczny: Korba:
Składana długości 180 cm z przegubem Cardana, anodowane aluminium
Składana długości 180 cm z przegubem Cardana i przepustem ściennym, anodowane aluminium
Kolor konstrukcji RAL, FSM
Model tkaniny Wg aktualnego cennika
Zastosowanie Zewnętrzne / Wewnętrzne

DEKLAROWANE WŁAŚCIWOŚCI UŻYTKOWE (ZEWNĘTRZNE) – Prowadnice listwowe
Deklaracja Właściwości Użytkowych 63 / R / 2017
Odporność na obciążenie wiatrem 1 klasa (48Pa)
Całkowity współczynnik przenikania energii słonecznej gtot 0,01 – 0,90*
DEKLAROWANE WŁAŚCIWOŚCI UŻYTKOWE (ZEWNĘTRZNE) – Prowadnice linkowe
Deklaracja Właściwości Użytkowych 64 / R / 2017
Odporność na obciążenie wiatrem 2 klasa (84 Pa)
Całkowity współczynnik przenikania energii słonecznej gtot 0,01 – 0,90*


Refleksol 103 - Dane Techniczne - Refleksol 103 selt, komponenty refleksola, klip montażowy, kaseta refleksola, uchwyt prowadnicy, prowadnica listwowa, belka dolna, profil antywind, profil przeciwwietrzny, Montaż podwójnej belki antywind, belka przeciwwietrzna montaż, Refleksol 103 mocowanie uchwyty italia, montaż zewnętrzny przy użyciu kątownika, Refleksol 103 montaż do ściany, montaż do wneki, prowadnice wewnętrzne, Napinacz linki refleksola ścienny, szczegóły techniczne, Refleksol 103 prowadnica linkowa tkaniny, roleta z napędem elektrycznym, Refleksol 103 uchwyt prowadnicy, sworzeń refleksola, ekstruder refleksola, stopka refleksola, Refleksol 103 mocowanie linki trzymającej tkaninę, uchwyt prowadnicy linkowej, Refleksol 103, uchwyt samonośny typ a, refleksole uchwyty, Refleksol 103, rura nawojowa tkaniny, rura nawojowa ocynkowana, klip montażowy, Refleksol 103 selt, prowadnice przekroje, prowadnica linkowa 2,5mm, prowadnica aluminiowa, profil wzmacniający, belka dolna,